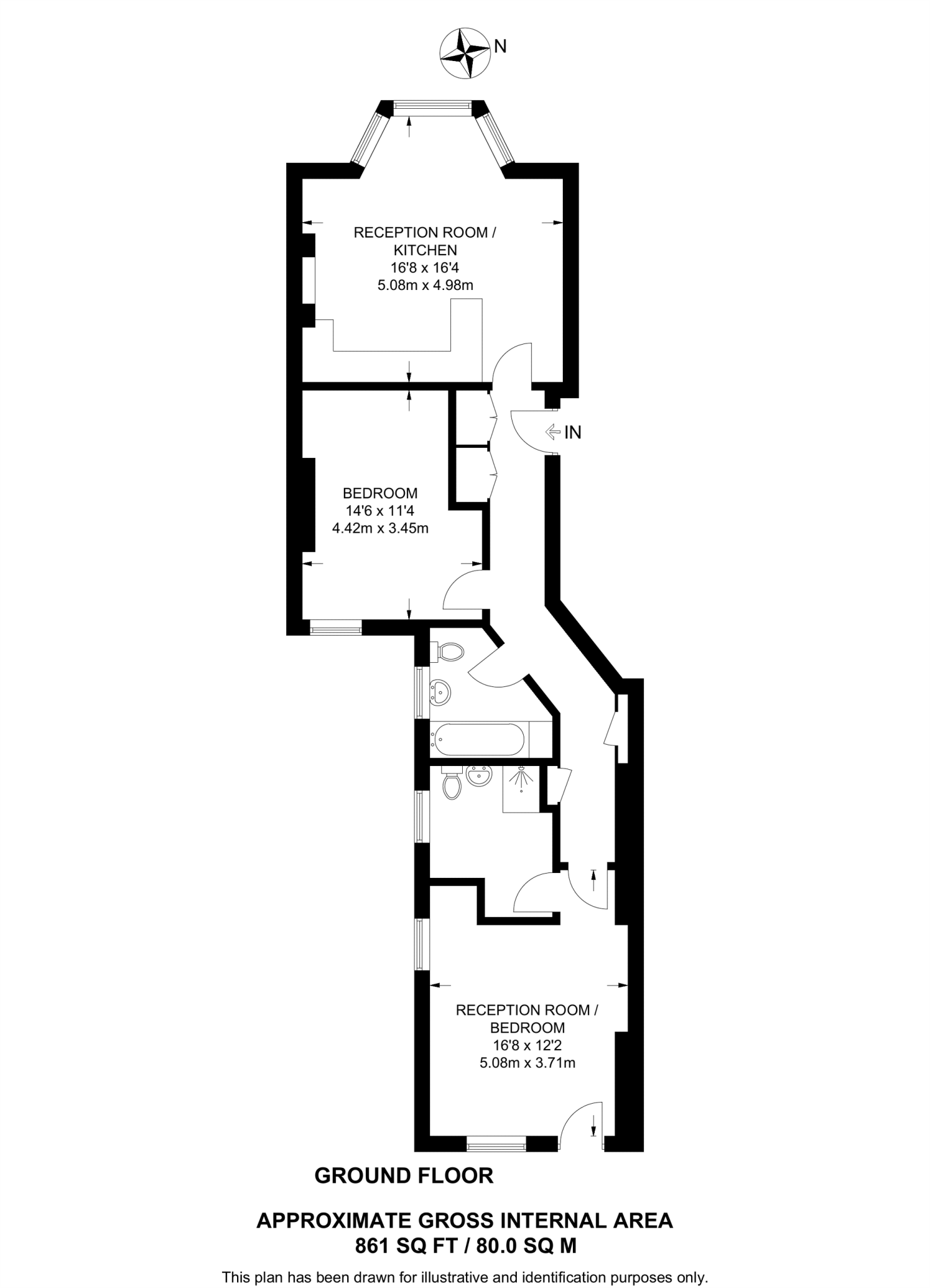
Sunny two-bedroom ground-floor flat with communal gardens and excellent transport links.
Bay-fronted reception with bright, neutral décor
Well-equipped kitchen with space to dine
Two generously proportioned bedrooms, two bathrooms
Access to maintained communal gardens and nearby park
Around 861 sq ft; practical, linear layout
Share of freehold with ~135 years remaining on lease
Solid-brick, period walls — likely limited insulation
Average local crime; typical mansion-block maintenance obligations
A bright, bay-fronted two-bedroom flat set on the ground floor of a handsome early 20th-century mansion block. The reception room's bay window and neutral decor create an airy, welcoming living space, while a well-equipped kitchen offers room to dine. Two generous bedrooms and two bathrooms suit a small family or professional sharers looking for comfortable, move-in-ready accommodation.
Residents benefit from access to well-kept communal gardens and peaceful green space close by at Paddington Recreation Ground. Maida Vale Underground (Bakerloo) and local buses put central London within easy reach, and fast broadband plus excellent mobile signal support home working. Local schools include Outstanding-rated options, making the location family-friendly.
This is a period property with solid-brick construction and character features; as built, external walls may lack modern insulation so consider potential upgrade costs to improve thermal efficiency. The flat is sold as a share of freehold with a long lease (about 135 years), and its size (around 861 sq ft) offers a practical layout without large surplus space. Average local crime and the usual maintenance obligations for a mansion block should be factored into ownership costs.
3 bedroom flat for sale in Castellain Mansions, Maida Vale, London, W9 — £1,000,000 • 3 bed • 1 bath • 944 ft²
2 bedroom apartment for sale in Wymering Mansions, Wymering Road, Maida Vale, W9 — £795,000 • 2 bed • 1 bath
2 bedroom flat for sale in Wymering Mansions,
Wymering Road, W9 — £800,000 • 2 bed • 1 bath • 746 ft²
2 bedroom flat for sale in `Wymering Mansions, Maida Vale, London, W9 — £780,000 • 2 bed • 1 bath • 830 ft²
1 bedroom flat for sale in Essendine Mansions, Maida Vale, London, W9 — £585,000 • 1 bed • 1 bath • 517 ft²
2 bedroom apartment for sale in Ashworth Mansions, Elgin Avenue, London, W9 — £965,000 • 2 bed • 2 bath • 867 ft²


















































































