FK8 3LU - 5 bedroom detached house for sale in Bank House, Main Stree…

View on Property Piper

5 bedroom detached house for sale in Bank House, Main Street, Buchlyvie, Stirling, FK8

Summary - BANK HOUSE, MAIN STREET, STIRLING, BUCHLYVIE FK8 3LU

5 bed 2 bath Detached

**Standout Features:**
- Character-filled Victorian detached home with period features
- 5 spacious bedrooms and 2 bathrooms
- Generous private garden with greenhouse and garden shed
- Exceptional views of the Trossachs, including Ben Ledi
- Original walk-in bank safe, adding unique historical charm
- Close to local amenities, primary school, and excellent transport links

Discover the charm of Buchlyvie with this exceptional 5-bedroom Victorian home, perfectly blending historic character with modern living. Its stunning stone facade and high ceilings create an inviting atmosphere filled with natural light. Inside, you'll find spacious reception rooms, including a bright living room, an elegant dining area, and a beautifully crafted kitchen by Smallbone of Devizes. The garden offers a private oasis with delightful views and ample space for outdoor activities, perfect for families or entertainers alike.

The property prides itself on its generous room sizes and storage options, with the potential for personalization and further development in the fully floored attic. Situated in a picturesque village, you are just a short walk from local amenities, including a primary school and community services, making it ideal for families or anyone seeking a tranquil lifestyle. However, potential buyers should note that the council tax band is G, which may be on the higher side.

Don’t miss this chance to own a slice of history in one of Stirlingshire's most desirable villages—where comfort and community meet. Seize the opportunity to create your dream home in this exclusive setting.

Property Details

Brochure Descriptions

Image Descriptions

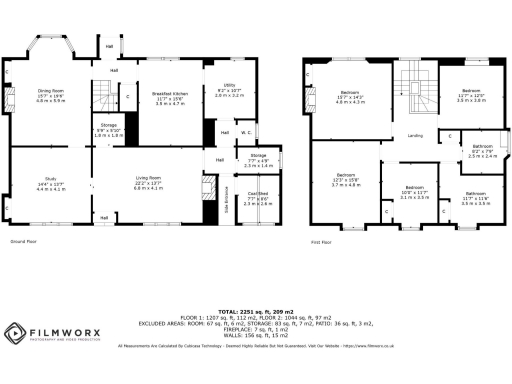
Floorplan Description

Rooms

Textual Property Features

Detected Visual Features

Nearest Bars And Restaurants

,,,,}

Nearest General Shops

,,}

Nearest Grocery shops

,,}

Nearest Supermarkets

,,}

Nearest Religious buildings

,,}

Nearest Medical buildings

,,,}

Nearest Leisure Facilities

,,,,}

Nearest Tourist attractions

,,}

Nearest Train stations

,,,,}

Nearest Bus stations and stops

,,,,}

Nearest Hotels

,,}

Tags

Local Market Stats

Similar Properties

Meta

High Res Images

Compatible Images

Low res Images

Thumbnails

Raw Images

High Res Floorplan Images

Compatible Floorplan Images

Low res Floorplan Images

FloorplanImages Thumbnail

Raw Floorplan Images