Compact, well-presented first home moments from the High Street.
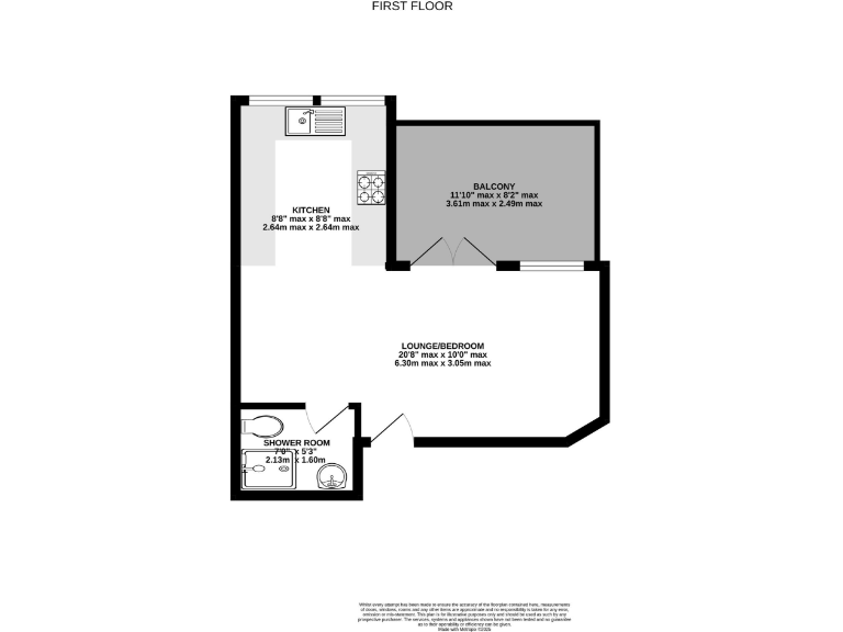
Private first-floor studio with balcony and communal gardens
Open-plan living, 29 sq m (318 sq ft) — compact accommodation
Modern fitted kitchen; shower room in place
Gas central heating: boiler and radiators, mains gas
Long lease (981 years) and no ground rent
Service charge £114.86 pcm (approx. £1,383 yearly)
Solid brick era build (1900–1929); insulation likely limited
Chain free — quick, straightforward purchase
Bright first-floor studio in the heart of Shirehampton Village, ideal for a first-time buyer seeking low-fuss city living. The open-plan layout makes efficient use of 29 sq m (318 sq ft) and opens onto a private balcony that extends the living space in warmer months. Communal gardens provide extra outdoor space beyond the balcony.
Practical comforts include a modern fitted kitchen, gas central heating with a boiler and radiators, and double glazing (install date unknown). The long lease (981 years) and no ground rent reduce long-term ownership costs. The flat is offered chain-free, making for a straightforward purchase.
Notable costs and constraints are transparent: the property is leasehold with a service charge of £114.86 per month (approx. £1,383 per year) and council tax is band A (very cheap). Accommodation is compact — a single open-plan room — so storage and separate living/ sleeping zones are limited.
The building dates from c.1900–1929 and is solid brick construction; insulation levels are assumed minimal. The area offers fast broadband and excellent mobile signal, good local schools and village amenities within easy walking distance. Overall this is a tidy, well-presented studio suited to someone prioritising location and convenience over space.
Studio flat for sale in Lake Shore Drive, Bristol, BS13 — £130,000 • 1 bed • 1 bath • 323 ft²
Studio flat for sale in Canons Way, Bristol, BS1 — £190,000 • 1 bed • 1 bath • 370 ft²
Studio apartment for sale in St Aidans Close, BS5 — £129,000 • 1 bed • 1 bath
1 bedroom flat for sale in Balmoral House, Canons Way, Bristol, BS1 — £190,000 • 1 bed • 1 bath • 354 ft²
Studio flat for sale in Wetherell Place, Clifton, Bristol, BS8 1AR, BS8 — £160,000 • 1 bed • 1 bath
1 bedroom flat for sale in Cathedral Walk, Bristol, BS1 — £200,000 • 1 bed • 1 bath • 381 ft²










































