AL1 5WA - 1 bed bright onebedroom apartment in Dexter Close, AL1 5WA

View on Property Piper

1 bedroom apartment for sale in Dexter Close, St. Albans, Hertfordshire, AL1

Summary - GATCOMBE COURT 15 DEXTER CLOSE ST. ALBANS AL1 5WA

1 bed 1 bath Apartment

Convenient city-edge location ideal for first-time buyers or investors.
Chain free one-bedroom apartment, first-floor with lift access
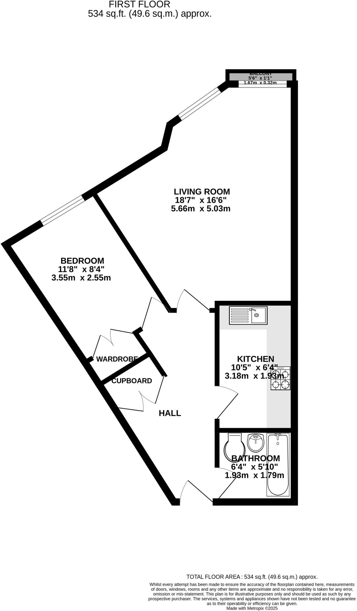
This bright one-bedroom apartment sits on the first floor of a modern development, offered chain free and with a lift to all levels. The living/dining room benefits from an elevated outlook and plenty of natural light, while the double bedroom includes built-in storage for practical everyday living. At around 534 sq ft the layout is well proportioned for a first home or buy-to-let, and the property is only 0.6 miles from St Albans City station.

Practical features include an allocated off-street parking space, visitor bays, secure entry and well-maintained communal gardens that add curb appeal and easy outdoor space. Heating is by mains gas with a boiler and radiators; glazing is double glazed (installation date unknown). The lease is exceptionally long at 974 years and the property is free of flood risk.

Costs and communal responsibilities are important: the service charge is approximately £2,500 per year and ground rent is £50, which buyers should factor into ongoing affordability. The building was constructed in the late 1990s–early 2000s and is in a generally affluent, urban area with fast broadband and excellent mobile signal.

Overall this apartment suits a first-time buyer or investor wanting a low-maintenance, centrally located home with good transport links. Buyers should budget for the annual service charge and confirm the condition of finishes and key services during survey and viewing.

Property Details

Brochure Descriptions

Image Descriptions

Floorplan Description

Rooms

Textual Property Features

Target Audience

AI Tags

Detected Visual Features

EPC Details

Nearby Schools

Nearest Bars And Restaurants

,,,,}

Nearest General Shops

,,}

Nearest Grocery shops

,,}

Nearest Supermarkets

,,}

Nearest Religious buildings

,,}

Nearest Medical buildings

,,,}

Nearest Airports

,,}

Nearest Leisure Facilities

,,,,}

Nearest Tourist attractions

,,}

Nearest Train stations

,,,,}

Nearest Bus stations and stops

,,,,}

Nearest Hotels

,,}

Tags

Local Market Stats

AirBnB Data

Similar Properties

Meta

High Res Images

Compatible Images

Low res Images

Thumbnails

Raw Images

High Res Floorplan Images

Compatible Floorplan Images

Low res Floorplan Images

FloorplanImages Thumbnail

Raw Floorplan Images