Roomy family living with gated parking and private garden.
Newly renovated throughout, move-in ready
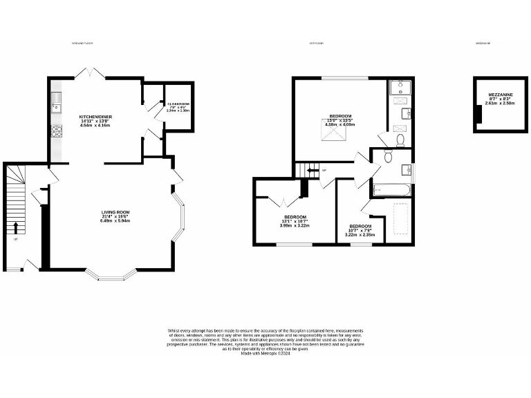
This recently renovated three-bedroom semi-detached home sits on a quiet country lane in Tongham, offering bright, flexible living across multiple levels. The ground floor provides a generous living room with a feature fireplace and a large kitchen/diner ideal for family meals and entertaining. Upstairs are three double bedrooms, the main with an en suite and mezzanine, plus a family bathroom.
Outside there is a private, enclosed rear garden with a good-sized patio and gated off-street parking for several vehicles. The property is chain free and within easy walking distance of local amenities, the Hogs Back brewery and the renovated White Hart pub. Good primary and secondary schools are nearby, and the A3/M3 are quickly accessible for commuting.
Practical points to note: heating is by LPG boiler and radiators (not a mains gas supply). The EPC rating is E (50) and the external walls are cavity-built with no confirmed added insulation, which could affect running costs. Council Tax is Band E, above the national average. These are straightforward issues to address but are important for budgeting and future improvements.
Overall this house will suit a growing family seeking a village location with roomy living, parking and a low-maintenance garden. Renovated interiors reduce immediate work, while modest energy improvements would increase comfort and long-term value.
3 bedroom semi-detached house for sale in New Road, Tongham, Surrey, GU10 — £450,000 • 3 bed • 1 bath • 795 ft²
3 bedroom terraced house for sale in West Ring, The Cardinals, Tongham, Farnham, GU10 — £335,000 • 3 bed • 1 bath • 689 ft²
3 bedroom end of terrace house for sale in Grange Road, Tongham, Surrey, GU10 — £475,000 • 3 bed • 2 bath • 695 ft²
3 bedroom terraced house for sale in Carfax Avenue, Tongham, Farnham, Surrey, GU10 — £400,000 • 3 bed • 2 bath • 943 ft²
2 bedroom terraced house for sale in Chester Way, Tongham, Surrey, GU10 — £375,000 • 2 bed • 1 bath • 596 ft²
3 bedroom semi-detached house for sale in Parsons Way, Tongham, Farnham, Surrey, GU10 — £460,000 • 3 bed • 2 bath • 1185 ft²










































































































