DT4 9YU - 3 bed sea view penthouse weymouth in South Dorset, DT4 9YU

View on Property Piper

3 bedroom penthouse for sale in No.1 Chesil Beach, Weymouth, DT4

Summary - BOAT YARD, FERRYMANS WAY DT4 9YU

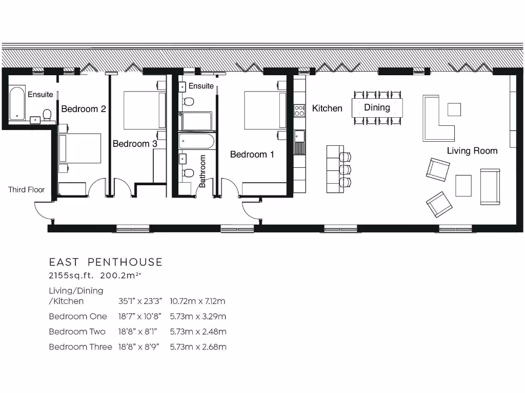
3 bed 3 bath Penthouse

Spacious 3-bed penthouse with panoramic sea views, double garage and modern eco-systems..
East-facing penthouse with panoramic sea and harbour views
Set on the Chesil peninsula, this east-facing penthouse delivers panoramic views across Weymouth Bay and the harbour from an elevated position. At more than 2,000 sq ft the apartment offers three double bedrooms, three bathrooms and a large open-plan kitchen/living area that opens onto a private balcony — ideal for seaside living or a lock‑up‑and‑leave second home.

Completed to modern standards in 2025 with a 10-year new build warranty, the home includes air-source heat pumps, underfloor heating, air conditioning and smart meters. Practical extras include secure underground parking (two spaces in a double garage), bike and sports storage, and car and bicycle charging points.

This is an off‑plan purchase with completion due September 2025. Coastal locations bring greater exposure to salt and weather, so expect standard seaside maintenance needs over time. The development sits close to Weymouth town amenities and beaches; local schools are nearby though the nearest secondary school currently requires improvement.

The property suits buyers seeking a roomy, low-maintenance coastal residence or a premium holiday investment. It benefits from strong eco-features and contemporary finishes, but purchasers should factor in ongoing coastal maintenance and the usual considerations for new-build, off‑plan transactions.

Property Details

Brochure Descriptions

Image Descriptions

Floorplan Description

Rooms

Textual Property Features

Target Audience

AI Tags

Detected Visual Features

Nearby Schools

Nearest Bars And Restaurants

,,,,}

Nearest General Shops

,,}

Nearest Grocery shops

,,}

Nearest Supermarkets

,,}

Nearest Religious buildings

,,}

Nearest Medical buildings

,,,}

Nearest Leisure Facilities

,,,,}

Nearest Tourist attractions

,,}

Nearest Train stations

,,,,}

Nearest Bus stations and stops

,,,,}

Nearest Hotels

,,}

Tags

Local Market Stats

AirBnB Data

Similar Properties

Meta

High Res Images

Compatible Images

Low res Images

Thumbnails

Raw Images

High Res Floorplan Images

Compatible Floorplan Images

Low res Floorplan Images

FloorplanImages Thumbnail

Raw Floorplan Images