HP3 9NY - 4 bedroom detached house for sale in Belmont Road, Hemel He…

View on Property Piper

4 bedroom detached house for sale in Belmont Road, Hemel Hempstead, HP3 9NY, HP3

Summary - 55, Belmont Road, HEMEL HEMPSTEAD HP3 9NY

4 bed 2 bath Detached

**Standout Features:**
- Extended 4-bedroom Tudor Revival detached house
- Flexible living space with potential for 5 bedrooms and 3-4 reception rooms
- Generous mature gardens with patio areas, pond, and storage options
- Driveway accommodating 2-3 vehicles
- En-suite master bedroom
- Excellent transport links (Apsley train station is a 15-minute walk)

**Summary:**
Discover this charming 1930s detached family home, perfectly positioned on a sought-after road. The property offers an impressive amount of living space with the potential to modernize and customize to your taste. Featuring 4 bedrooms and 3-4 reception rooms, including a cozy living room with a bay window, this residence stands out with its lovely mature gardens, ideal for family gatherings or outdoor relaxation.

While the interior may require some updating, the solid structure and contemporary layout provide a fantastic opportunity for renovation enthusiasts to create their dream home. Benefit from a driveway for multiple vehicles and a tranquil outdoor retreat, complete with a pond and ample space for expansion possibilities like a storage shed or carport.

Conveniently located near local amenities, quality schools, and beautiful parkland, this property is perfect for families looking for comfort, character, and community. Don't miss out on this unique opportunity—book your viewing today and imagine the possibilities!

Property Details

Brochure Descriptions

Image Descriptions

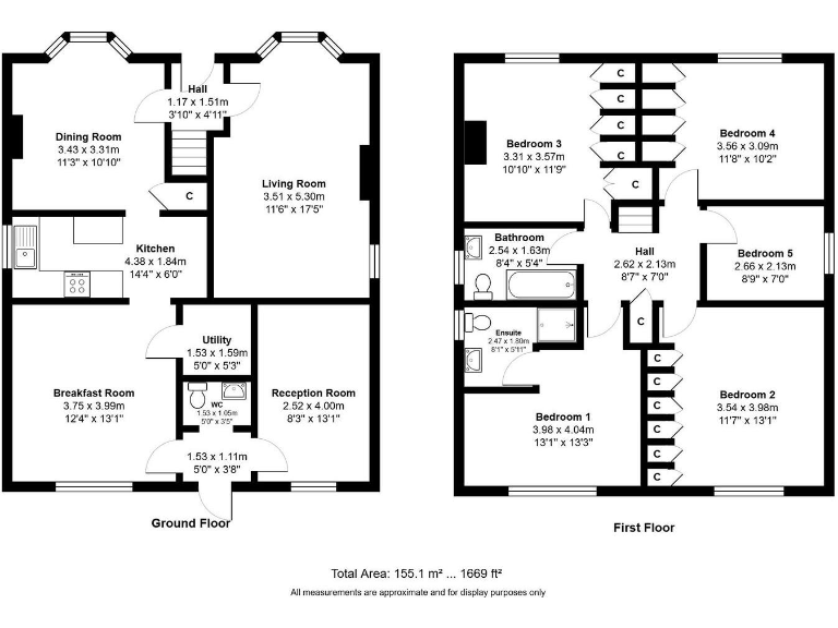
Floorplan Description

Rooms

Textual Property Features

Detected Visual Features

EPC Details

Nearby Schools

Nearest Bars And Restaurants

,,,,}

Nearest General Shops

,,}

Nearest Grocery shops

,,}

Nearest Supermarkets

,,}

Nearest Religious buildings

,,}

Nearest Medical buildings

,,,}

Nearest Airports

}

Nearest Leisure Facilities

,,,,}

Nearest Tourist attractions

,,}

Nearest Train stations

,,,,}

Nearest Bus stations and stops

,,,,}

Nearest Hotels

,,}

Tags

Local Market Stats

AirBnB Data

Similar Properties

Meta

High Res Images

Compatible Images

Low res Images

Thumbnails

Raw Images

High Res Floorplan Images

Compatible Floorplan Images

Low res Floorplan Images

FloorplanImages Thumbnail

Raw Floorplan Images