**Standout Features:**
- Spacious 3-bedroom detached home built in 1930
- Extended integral garage with potential as a workshop or for additional storage
- Beautifully maintained south-facing garden perfect for outdoor enjoyment
- Separate lounge, dining room, and garden room create ample living space
- Located near the Ridgeway shopping area with convenient amenities
- No onward chain for quicker purchase
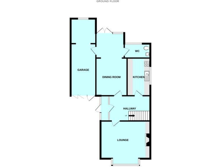
This charming 1930s detached home in Plympton is a rarity, combining period features with spacious modern living. Inside, you'll find a welcoming entrance hall leading to a cozy lounge adorned with original decorative arches, a separate dining room, and a bright garden room inviting natural light and serene views of your stunning south-facing garden. Perfect for families, the property includes three well-proportioned bedrooms upstairs along with a family bathroom, offering comfort and privacy.
The extended integral garage adds significant functionality and could serve as a great utility space or workshop. Outside, the meticulously landscaped garden offers a peaceful retreat enhanced by mature plants and a patio area—ideal for entertaining or unwinding after a long day. With off-street parking and being chain-free, this property is ready for you to make it your own. Don’t miss your chance to secure a home in this highly desirable location where community amenities and green spaces are just a stroll away!
4 bedroom semi-detached house for sale in Plympton, Plymouth, PL7 — £550,000 • 4 bed • 2 bath • 1669 ft²
3 bedroom semi-detached house for sale in Plymstock Road, Plymstock, Plymouth, Devon, PL9 7NU, PL9 — £375,000 • 3 bed • 1 bath • 1798 ft²
4 bedroom detached house for sale in Plympton, Plymouth, PL7 — £750,000 • 4 bed • 2 bath • 2164 ft²
4 bedroom detached house for sale in Plympton, Plymouth, PL7 — £450,000 • 4 bed • 2 bath • 1504 ft²
3 bedroom semi-detached house for sale in Plympton, Plymouth, PL7 — £300,000 • 3 bed • 1 bath • 1270 ft²
3 bedroom detached house for sale in Merafield Road, Plympton, PL7 — £375,000 • 3 bed • 2 bath • 1444 ft²


























































































































