**Standout Features:**
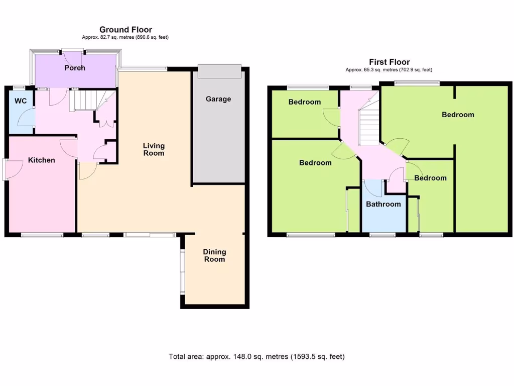
- Four spacious bedrooms ideal for family living
- Modernized bathroom and open-plan dining area
- Attractive rear and side garden with patio areas
- Convenient garage and private driveway
- Quiet suburban location with low crime rate
- Close to local amenities and schools
**Potential Concerns:**
- EPC Rating G indicates potential energy efficiency improvements needed
- Cavity walls assumed to lack insulation
Discover this charming detached family home, perfectly positioned in a serene close in Worthing. With four well-proportioned bedrooms, a contemporary kitchen/breakfast room, and a modern bathroom, this property is designed to accommodate the busy lifestyles of families. The inviting living areas flow seamlessly, enhanced by ample natural light and an open-plan dining room, perfect for gatherings.
The exterior offers a low-maintenance rear garden with inviting patio spaces and a landscaped front garden, contributing to its attractive curb appeal. A garage and driveway ensure convenience for family vehicles. With excellent local amenities, including schools rated 'Good', parks, and easy access to major routes, you'll enjoy a lifestyle of comfort and convenience.
Though the home presents an opportunity for energy improvements, its solid structure and spacious layout promise a wonderful living experience. Invest in your family's future in this friendly suburb—homes like this don’t stay on the market long!
4 bedroom detached house for sale in Littlehampton Road, Worthing, BN13 — £635,000 • 4 bed • 1 bath • 2340 ft²
4 bedroom detached house for sale in Sandwich Road, Worthing, BN11 — £825,000 • 4 bed • 2 bath • 1239 ft²
4 bedroom detached house for sale in Carisbrooke Drive, Worthing, BN13 — £475,000 • 4 bed • 2 bath • 1088 ft²
5 bedroom detached house for sale in Arundel Road, Worthing, West Sussex BN13 3ET, BN13 — £700,000 • 5 bed • 1 bath • 2153 ft²
4 bedroom detached house for sale in Cheviot Close, Salvington, Worthing BN13 2LL, BN13 — £600,000 • 4 bed • 3 bath • 1528 ft²
4 bedroom detached house for sale in Warren Road, Worthing, BN14 — £550,000 • 4 bed • 1 bath • 1186 ft²


































































































