Generous five-bed family home near UHW with garage and garden.
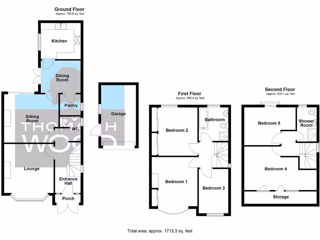
Five bedrooms and three bathrooms across three floors
Set over three floors, this Edwardian semi delivers generous family living in Heath, within easy walking distance of the University Hospital of Wales, Heath Park and strong transport links into the city. The accommodation includes two reception rooms, a modern kitchen, utility room, five bedrooms and three bathrooms — a flexible layout suited to families, home workers or multi-generational living. The current owners report the house has been well maintained and it presents in good order throughout.
Practical features include UPVC double glazing, a modern Worcester combination boiler serving radiators, off-road parking and a detached single garage. The rear garden is enclosed and low-maintenance with lawn and patio areas; the plot size is described as decent, giving useful outdoor space for children and pets. Total floor area is approximately 1,507 sq ft (rooms total around seven), and the property is offered freehold.
A few factual points for buyers: the property dates from the 1930s–1940s, and the double glazing install date is not recorded. Council Tax is Band F and described as expensive. Broader locality data records mixed indicators — affluent pockets nearby but some wider area deprivation metrics — so buyers should check local services and suitability. Viewings are recommended to assess layout, space and finish in person.
3 bedroom semi-detached house for sale in Heathwood Road, CARDIFF, CF14 — £475,000 • 3 bed • 1 bath • 1093 ft²
4 bedroom semi-detached house for sale in Heath Park Avenue, Cardiff, CF14 — £650,000 • 4 bed • 3 bath • 2350 ft²
4 bedroom detached house for sale in Heath Park Avenue, Heath, Cardiff, CF14 — £550,000 • 4 bed • 1 bath • 1410 ft²
4 bedroom semi-detached house for sale in King George V Drive East, Cardiff, CF14 — £550,000 • 4 bed • 3 bath • 1306 ft²
3 bedroom semi-detached house for sale in St. Anthony Road, Cardiff, CF14 — £475,000 • 3 bed • 1 bath • 1200 ft²
4 bedroom semi-detached house for sale in Maes-y-coed Road, Heath , Cardiff, CF14 — £525,000 • 4 bed • 2 bath • 1517 ft²














































































































































