**Property Highlights:**
- Charming semi-detached bungalow in a picturesque rural setting
- Generous double-width corner plot with private gardens
- Ample parking with carport and two driveways
- Two bedrooms and two bathrooms, plus sizable loft space with conversion potential
- South-west facing aspect, ensuring plenty of natural light
- Located near South Downs National Park with low crime rates in the area
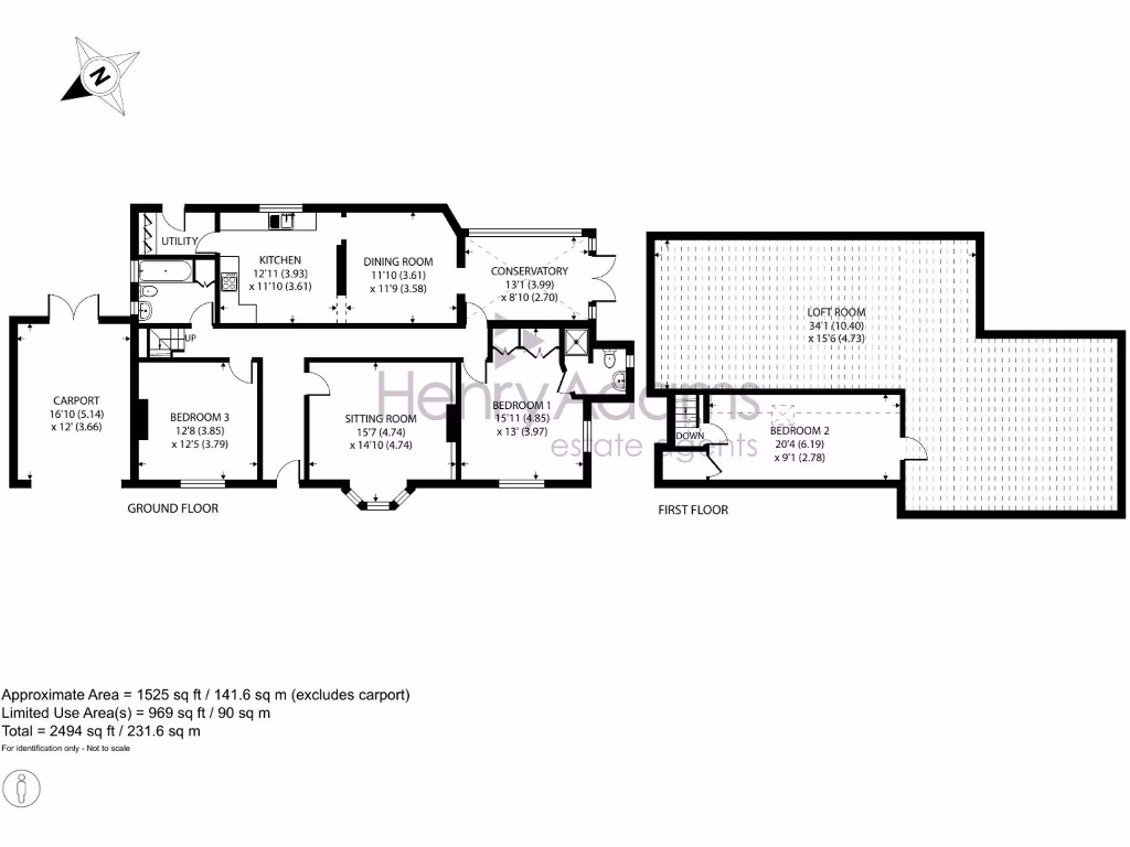
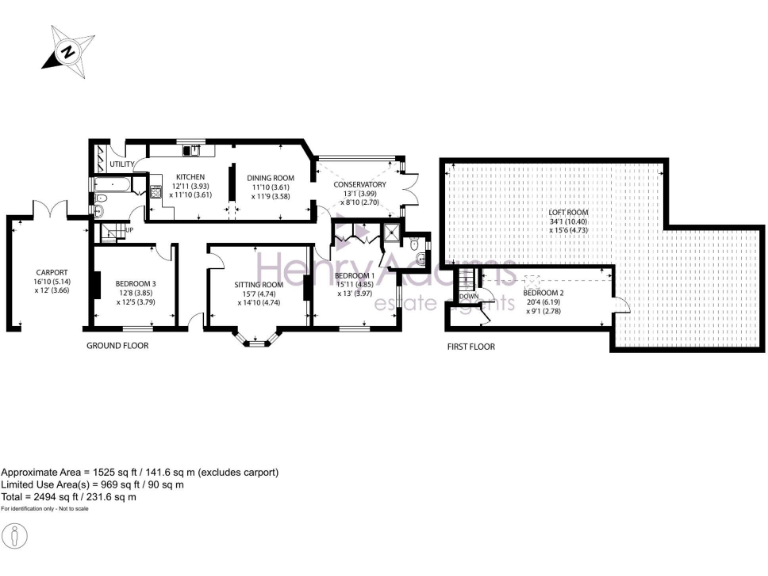
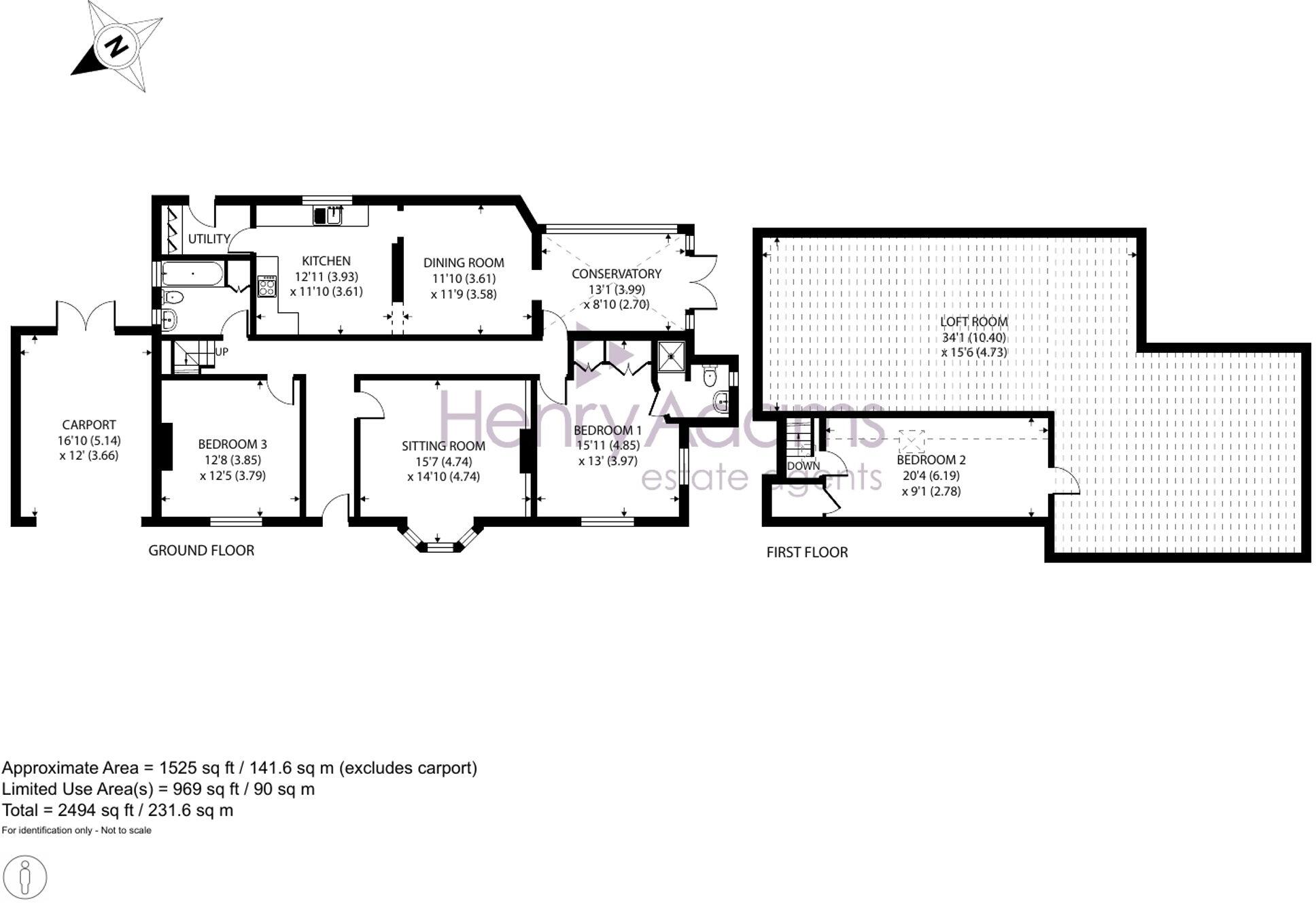
Experience quaint countryside living in this charming two-bedroom bungalow situated on a large, beautifully landscaped corner plot in the serene village of Steadham. The property features a traditional brick exterior and boasts ample parking with dual driveways leading to lush gardens adorned with mature specimen trees, perfect for outdoor enjoyment. Inside, the inviting living room and cozy country-style kitchen create a warm atmosphere for family life, while the separate dining room opens into a light-filled conservatory—ideal for soaking in the tranquil views.
The property includes a principal bedroom with an en-suite shower, and a secondary bedroom serviced by a family bathroom. The sizable loft space offers exciting potential for conversion, making this an attractive option for families or investors looking to expand. Although the property may require some updates and is equipped with an EPC rating of E, its peaceful rural setting, flexibility for future enhancements (subject to planning permissions), and proximity to local amenities—including schools rated 'Outstanding'—position it as a unique opportunity not to be missed. Embrace the charm of countryside life while enjoying the comfort and potential this bungalow has to offer!
3 bedroom bungalow for sale in School Lane, Stedham, West Sussex, GU29 — £750,000 • 3 bed • 2 bath • 1636 ft²
4 bedroom detached bungalow for sale in School Lane, Stedham, GU29 — £850,000 • 4 bed • 2 bath • 2114 ft²
3 bedroom detached bungalow for sale in Carron Lane, Midhurst, GU29 — £650,000 • 3 bed • 2 bath • 1345 ft²
3 bedroom semi-detached house for sale in Ridge Common Lane, Stroud, Petersfield, Hampshire, GU32 — £725,000 • 3 bed • 2 bath • 1261 ft²
4 bedroom bungalow for sale in Pine Close, Midhurst, West Sussex, GU29 — £550,000 • 4 bed • 2 bath • 2171 ft²
4 bedroom detached house for sale in Little Hill, West Chiltington, Pulborough, West Sussex, RH20 — £880,000 • 4 bed • 3 bath • 3000 ft²














































































