Charming three-bedroom home with enclosed garden and handy stone store.
- Detached granite cottage in semi-rural Yealmpton courtyard
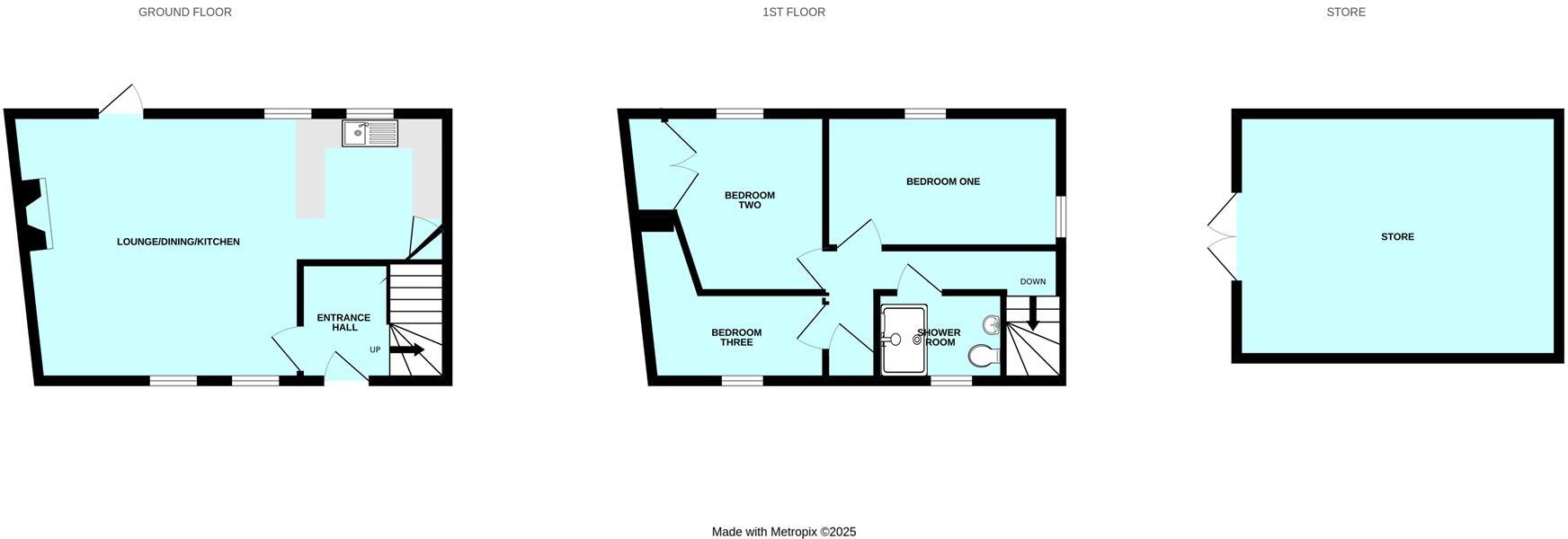
- Open-plan living/dining/kitchen with solid-fuel burner
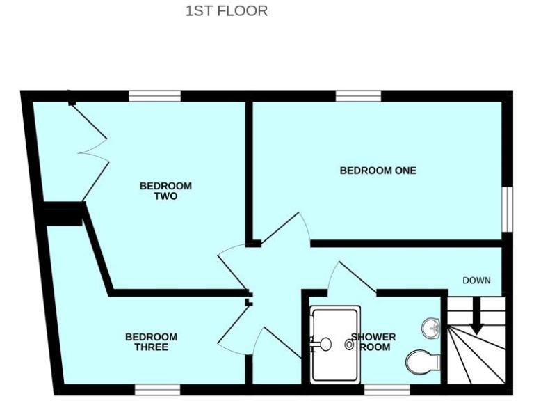
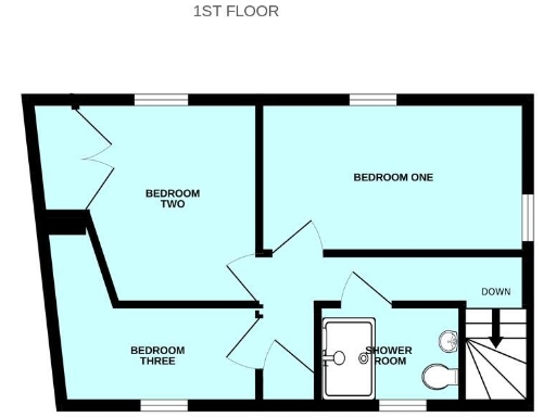
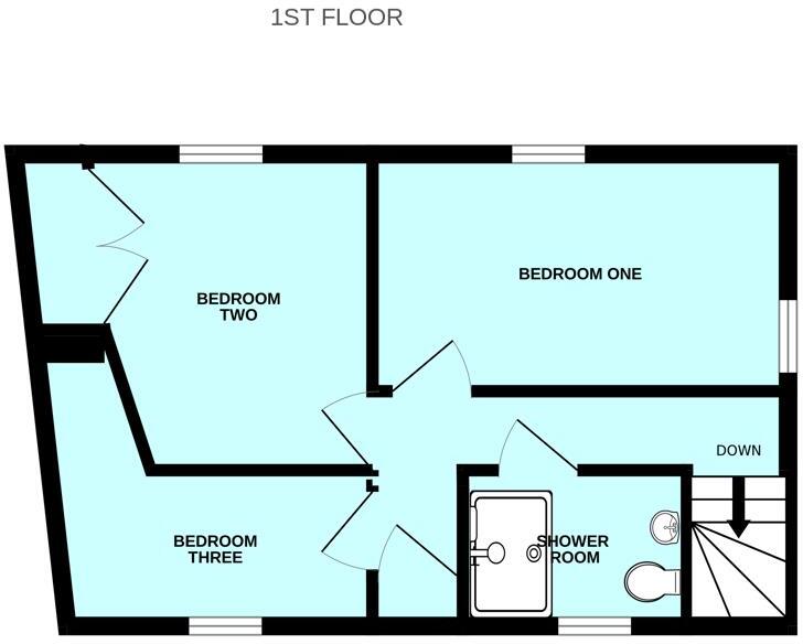
- Three bedrooms and modern shower room
- Enclosed rear garden, deck, greenhouse and lawn
- Detached stone-built store with vaulted roof space
- Residents and visitor off-street parking on brick-paved courtyard
- Oil-fired central heating and private drainage (buyer to note)
- Stone walls likely uninsulated; small plot size
Set within a quiet semi-rural courtyard in Yealmpton, this detached granite cottage pairs period charm with practical living. The open-plan living/dining/kitchen is bright and sociable, anchored by a solid-fuel burner and wood-effect flooring. Three first-floor bedrooms sit around a modern shower room, making the layout straightforward for family life.
Outside, the attractively enclosed rear garden is low-maintenance with a deck, greenhouse and level lawn, and there is a useful detached stone store with vaulted roof. Residents and visitor parking sit on a brick-paved courtyard directly outside the house, a convenience in village settings.
Practical points to note: heating is oil-fired to a boiler and radiators, and drainage is private; the cottage dates from before 1900 and the stone walls appear uninsulated (assumed). There is double glazing but install dates are unknown. The plot is small, and accommodation is average-sized overall, so buyers seeking large gardens or significantly more internal space should be aware.
This property will suit buyers who value rural character, a village community and good local schools, and those willing to accept traditional construction and oil heating in exchange for a well-presented, detached cottage with parking and outbuilding storage.
3 bedroom cottage for sale in Market Street, Yealmpton, PL8 — £375,000 • 3 bed • 1 bath • 944 ft²
3 bedroom bungalow for sale in Bowden Hill, Yealmpton, PL8 — £575,000 • 3 bed • 2 bath • 1882 ft²
2 bedroom cottage for sale in Fore Street, Yealmpton, Devon, PL8 — £300,000 • 2 bed • 1 bath • 755 ft²
4 bedroom detached house for sale in Orchard Close, Yealmpton, PL8 — £600,000 • 4 bed • 2 bath • 1555 ft²
6 bedroom detached house for sale in Yealmpton, Plymouth, PL8 — £550,000 • 6 bed • 3 bath • 1951 ft²
1 bedroom semi-detached house for sale in Myrtle Cottages, Lutton, IVYBRIDGE, PL21 — £220,000 • 1 bed • 1 bath • 937 ft²


































































































































