BN9 9JW - 3 bed renovated semi detached in Western Road, BN9 9JW

View on Property Piper

3 bedroom semi-detached house for sale in Western Road, Newhaven, BN9

Summary - 51 Western Road BN9 9JW

3 bed 1 bath Semi-Detached

Move-in-ready family home with converted garage and driveway.
Three bedrooms; newly renovated throughout
This recently renovated three-bedroom semi offers move-in-ready family living close to local schools and amenities. The ground floor features a bright open-plan lounge/diner with herringbone flooring and a refitted kitchen that opens to a decent rear garden — good for children and weekend outdoor time.

A converted garage provides flexible, insulated space with electrics, running water and a kitchenette, ideal as a home office, gym or guest room. Off-street parking on a generous driveway and an affordable council tax band add practical everyday benefits. The property can be sold furnished, subject to offer, for a quick, low-hassle move.

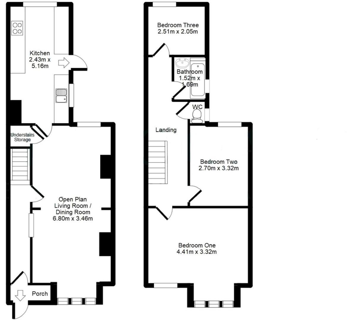
Be clear on the area factors: the neighbourhood is classified as deprived with a higher local crime level than average, which may concern some buyers. The overall internal size is modest (approx. 725 sq ft) and there is only one bathroom plus a separate WC, so families should consider household routines.

Mechanically the home is in good order — new heating system, refitted kitchen and bathroom, and double glazing already installed (pre-2002). Buyers wanting larger living space or a quieter setting should weigh commute and community factors against the property's contemporary finish and practical extras.

Property Details

Brochure Descriptions

Image Descriptions

Floorplan Description

Rooms

Textual Property Features

Target Audience

AI Tags

Detected Visual Features

EPC Details

Nearby Schools

Nearest Bars And Restaurants

,,,,}

Nearest General Shops

,,}

Nearest Grocery shops

,,}

Nearest Supermarkets

,,}

Nearest Religious buildings

,,}

Nearest Medical buildings

,,,}

Nearest Leisure Facilities

,,,,}

Nearest Tourist attractions

,,}

Nearest Train stations

,,,,}

Nearest Bus stations and stops

,,,,}

Nearest Hotels

,,}

Tags

Local Market Stats

AirBnB Data

Similar Properties

Meta

High Res Images

Compatible Images

Low res Images

Thumbnails

Raw Images

High Res Floorplan Images

Compatible Floorplan Images

Low res Floorplan Images

FloorplanImages Thumbnail

Raw Floorplan Images