**Standout Features:**
- Charming Grade II Listed Georgian cottage on a historic cobbled street
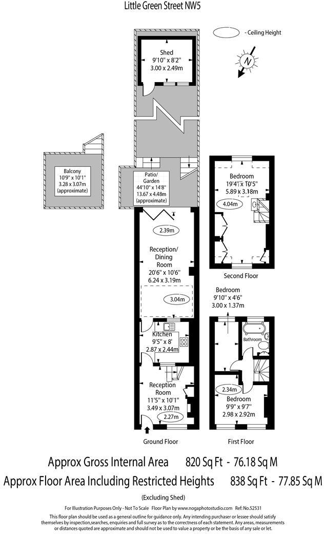
- Three bedrooms spread over three levels
- Large, light-filled extended rear reception area
- Modern fitted kitchen with appliances
- Generous sun terrace and rear garden
- Close proximity to Hampstead Heath and local amenities
- Period features maintained throughout
**Potential Concerns:**
- Listed status may complicate renovation plans
- Average-sized rooms with cozy proportions
- Above-average council tax in the area
Discover the allure of this delightful Grade II Listed Georgian cottage, tucked away on one of London's last remaining cobbled streets. This characterful home seamlessly combines historic charm with modern convenience. The ground floor offers a stunning, light-flooded extended reception area perfect for gatherings, alongside a contemporary kitchen equipped with modern appliances. A unique period-style family bathroom and three cozy bedrooms complete the interior, featuring beautiful detailing like exposed brickwork and timber paneling.
Step outside to enjoy a sizable sun terrace and a manageable rear garden, ideal for relaxing on warm evenings. Perfectly situated close to Hampstead Heath for scenic strolls, this home is also within easy reach of the shops, bars, and restaurants of Kentish Town. Just a short walk to Kentish Town Underground and Thameslink stations provides effortless access to the City and West End. While the cottage's listed status may present some limitations to renovations, its blend of history and character creates an inviting atmosphere that is hard to resist. Whether you're a family seeking a home with personality or a professional looking for charm and accessibility, this property promises a unique living experience in a vibrant part of London. Act quickly; homes like this are rare to find!
3 bedroom house for sale in East Heath Road, Hampstead, London NW3 — £1,500,000 • 3 bed • 1 bath • 1195 ft²
2 bedroom end of terrace house for sale in Hampstead Square, Hampstead Village, NW3 — £1,495,000 • 2 bed • 2 bath • 1031 ft²
1 bedroom cottage for sale in The Mount Square, Hampstead, NW3, NW3 — £775,000 • 1 bed • 1 bath • 491 ft²
3 bedroom house for sale in Leverton Place, London, NW5 — £1,700,000 • 3 bed • 2 bath • 1676 ft²
2 bedroom house for sale in Kiels Cottages, Back Lane, London, NW3 — £1,550,000 • 2 bed • 1 bath • 1269 ft²
4 bedroom house for sale in Pond Square, Highgate, London, N6 — £2,395,000 • 4 bed • 2 bath • 1436 ft²






















































































































