Spacious four-bedroom house on the edge of a historic market town with garage.
No onward chain — ready for quick move or sale
Modern detached build (2007–2011) with mains gas heating
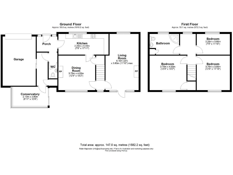
Three reception rooms plus kitchen/breakfast and separate utility
Four double bedrooms; principal with en-suite shower room
Decent rear garden, driveway parking and single integral garage
Double glazing throughout; EPC around C (mid-range efficiency)
Council Tax Band E — above local average
Local schools mixed performance; check catchment specifics
This modern detached family home in Kirton Lindsey offers spacious, well-presented accommodation across two floors with no onward chain. Built 2007–2011, the property benefits from mains gas central heating, uPVC double glazing and a practical layout that includes three reception rooms, a kitchen/breakfast room and a separate utility. The integral single garage, off-street parking and a decent-size rear garden suit everyday family life.
Upstairs there are four good-sized bedrooms, including a principal bedroom with an en-suite shower room, plus a family bathroom. The house is presented in neutral tones with wood-effect flooring in key ground-floor rooms, making it easy to move into or rent out immediately. Local amenities are within walking distance — shops, schools, a doctors’ surgery, a railway station and pubs — and the location sits on the edge of a historic market town.
Practical considerations are made clear: council tax sits at Band E (above average) and the wider area is described as a small town / town fringe setting with average crime and mobile signal. School performance locally is mixed; one nearby primary requires improvement and another rates good. There is no flood risk recorded for this postcode.
Overall this is a ready-to-live-in family home in an affluent, rural-fringe setting with good commuter and local amenities. It will suit buyers seeking a low-hassle move or investors wanting a modern, straightforward rental asset; those prioritising top-performing schools or very low local tax should check local details first.
3 bedroom detached house for sale in Eagle Court, Kirton Lindsey, Lincolnshire, DN21 — £249,950 • 3 bed • 2 bath • 1324 ft²
4 bedroom detached house for sale in Windmill Way, Kirton Lindsey, Gainsborough, Lincolnshire, DN21 — £294,000 • 4 bed • 2 bath • 1311 ft²
3 bedroom detached house for sale in Westdale Crescent, Kirton Lindsey, Gainsborough, Lincolnshire, DN21 — £230,000 • 3 bed • 2 bath • 1410 ft²
4 bedroom detached house for sale in Millstone Close, Kirton Lindsey, Gainsborough, DN21 — £360,000 • 4 bed • 3 bath • 1916 ft²
3 bedroom detached house for sale in Millers Close, Kirton Lindsey, Gainsborough, DN21 — £225,000 • 3 bed • 2 bath • 676 ft²
4 bedroom detached house for sale in Grove Street, Kirton Lindsey, Gainsborough, DN21 — £440,000 • 4 bed • 2 bath • 1080 ft²


































































