Affordable 40% shared purchase with private outdoor space and parking.
40% shared ownership — affordable entry point
Newly renovated with modern kitchen and bathroom
Private courtyard for outdoor use
Allocated off-street parking and direct access
Service charge above average: £6,018.48 per year
Combined rent & service charge £501.54 pcm
High local crime and very deprived area indicators
Community heating scheme (check operating terms and costs)
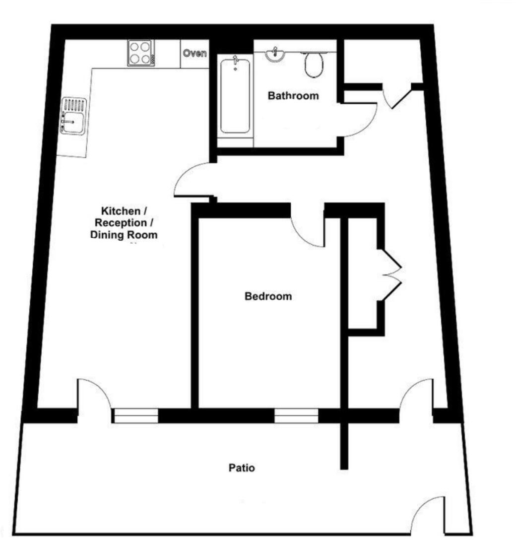
Offered on a 40% shared ownership basis, this newly renovated ground-floor, one-bedroom property combines contemporary finishes with practical living. The open-plan living room flows into a fitted modern kitchen and opens onto a private courtyard — a useful outdoor space for dining and relaxing. The double bedroom includes built-in storage and there is additional internal storage throughout.
Practical benefits include allocated off-street parking, direct private access and fast broadband with excellent mobile signal. Heating is provided via a community scheme and the property is presented ready to move into, which suits buyers wanting a low-immediate-work purchase.
Be realistic about location factors: the surrounding area scores high on deprivation and recorded crime levels are high. Service charges are above average at £6,018.48 per year; the combined rent and service charge is £501.54 pcm. This home will appeal most to first-time buyers seeking an affordable entry via shared ownership who prioritise modern fittings and good transport links over neighbourhood affluence.
1 bedroom apartment for sale in Blueberry Court, Rainham, RM13 8JN, RM13 — £260,000 • 1 bed • 1 bath • 797 ft²
2 bedroom apartment for sale in Broadis Way, Rainham, RM13 8JY, RM13 — £115,000 • 2 bed • 1 bath
2 bedroom apartment for sale in Blueberry Court, Rainham, RM13 8JY, RM13 — £134,000 • 2 bed • 1 bath • 808 ft²
2 bedroom ground floor flat for sale in Blueberry Court, Rainham, Havering, RM13 — £122,500 • 2 bed • 1 bath • 801 ft²
1 bedroom flat for sale in Merrielands Crescent, Dagenham, RM9 — £85,750 • 1 bed • 1 bath • 511 ft²
2 bedroom apartment for sale in Blueberry Court, Broadis Way, Rainham, RM13 — £340,000 • 2 bed • 1 bath • 802 ft²






































