Newly renovated SW8 one-bed with private patio, share of freehold and STPP potential..
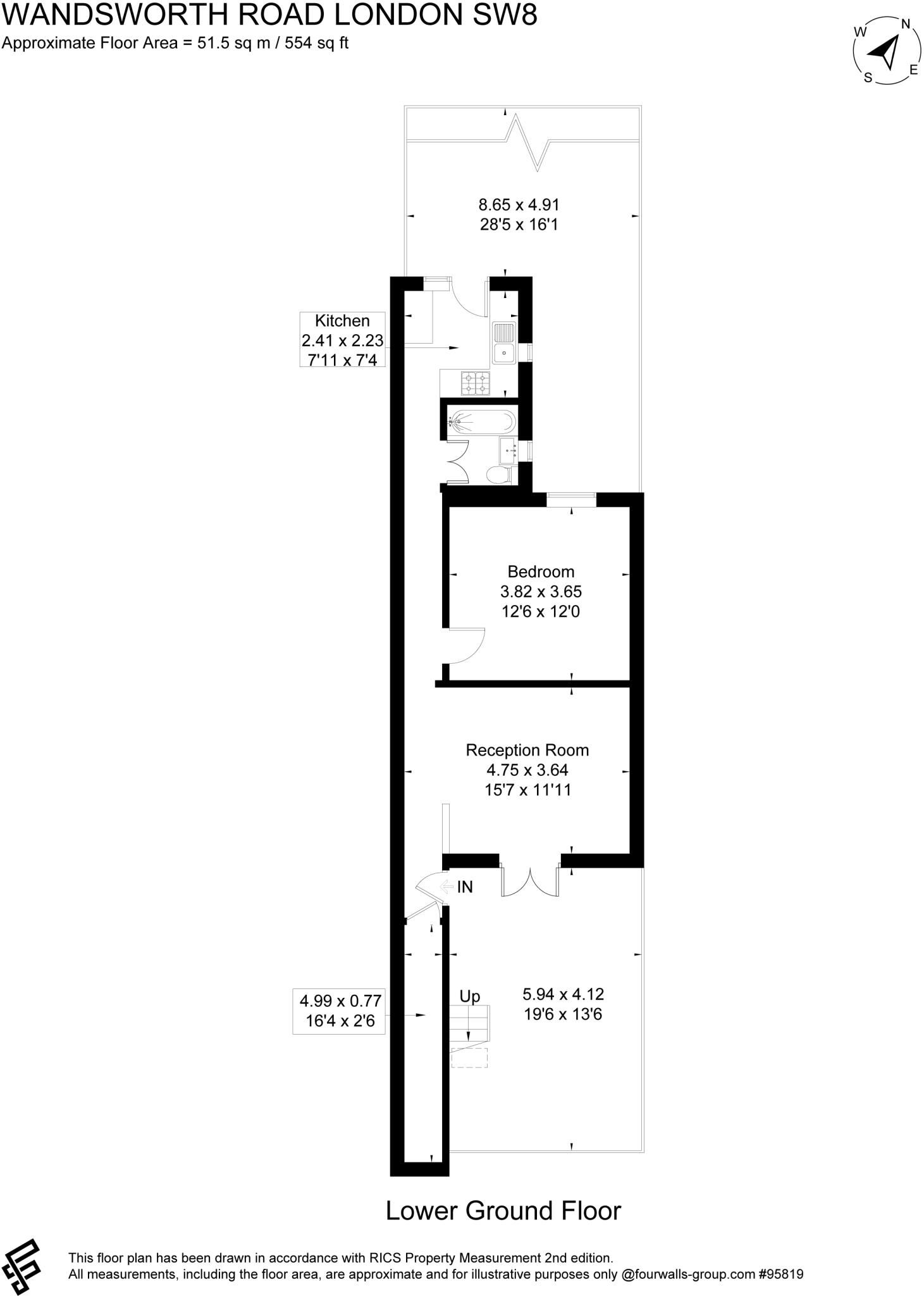
- Newly renovated one-bedroom flat, approximately 554 sq ft
- Private low-maintenance patio garden with pergola
- Share of freehold provides ownership stability
- Potential to extend subject to planning permission (STPP)
- Excellent public transport: Wandsworth Road Overground nearby
- Located on a main road; possible traffic and commercial noise
- Area classified as deprived; local crime levels average
- Average broadband speeds; council tax described as affordable
This newly renovated one-bedroom flat in SW8 offers generous living space and a private patio garden, ideal for a first-time buyer or investor seeking a well-connected London base. At about 554 sq ft the reception room is roomy enough for dining and lounging, while a large double bedroom includes built-in wardrobes for practical storage.
The kitchen is bright, fitted with integrated appliances and a washing machine, and opens directly onto a low-maintenance courtyard with a pergola – a rare outdoor space for a central London flat. The modern bathroom includes a full-sized bath with overhead shower and contemporary tiling.
Practical advantages include a share of freehold, potential to extend subject to planning permission (STPP), and immediate access to Wandsworth Road Overground plus local bus and neighbourhood amenities. Be aware the building fronts a main road and lies in an area classified as deprived; local crime levels are average and broadband speeds are only average. Any extension would require planning consent and could involve further works.
Overall this apartment suits buyers wanting a move-in-ready central London home with private outdoor space and long-term upside from extension potential, while accepting typical inner-city trade-offs around location and infrastructure.
1 bedroom flat for sale in Nantes Close, Wandsworth, London, SW18 — £425,000 • 1 bed • 1 bath • 522 ft²
1 bedroom flat for sale in St. Stephens Terrace, SW8 — £450,000 • 1 bed • 1 bath • 475 ft²
1 bedroom apartment for sale in Mysore Road, SW11 — £525,000 • 1 bed • 1 bath • 483 ft²
1 bedroom flat for sale in Wandsworth Road, Clapham, London, SW8 — £515,000 • 1 bed • 1 bath • 624 ft²
1 bedroom flat for sale in Stormont Road, London, SW11 — £550,000 • 1 bed • 1 bath • 727 ft²
1 bedroom flat for sale in Thorparch Road, Vauxhall, London, SW8 — £500,000 • 1 bed • 1 bath • 602 ft²






























