Practical four-bed home with impressive dining kitchen and low-maintenance garden.
Extended four-bedroom semi-detached villa with flexible layout
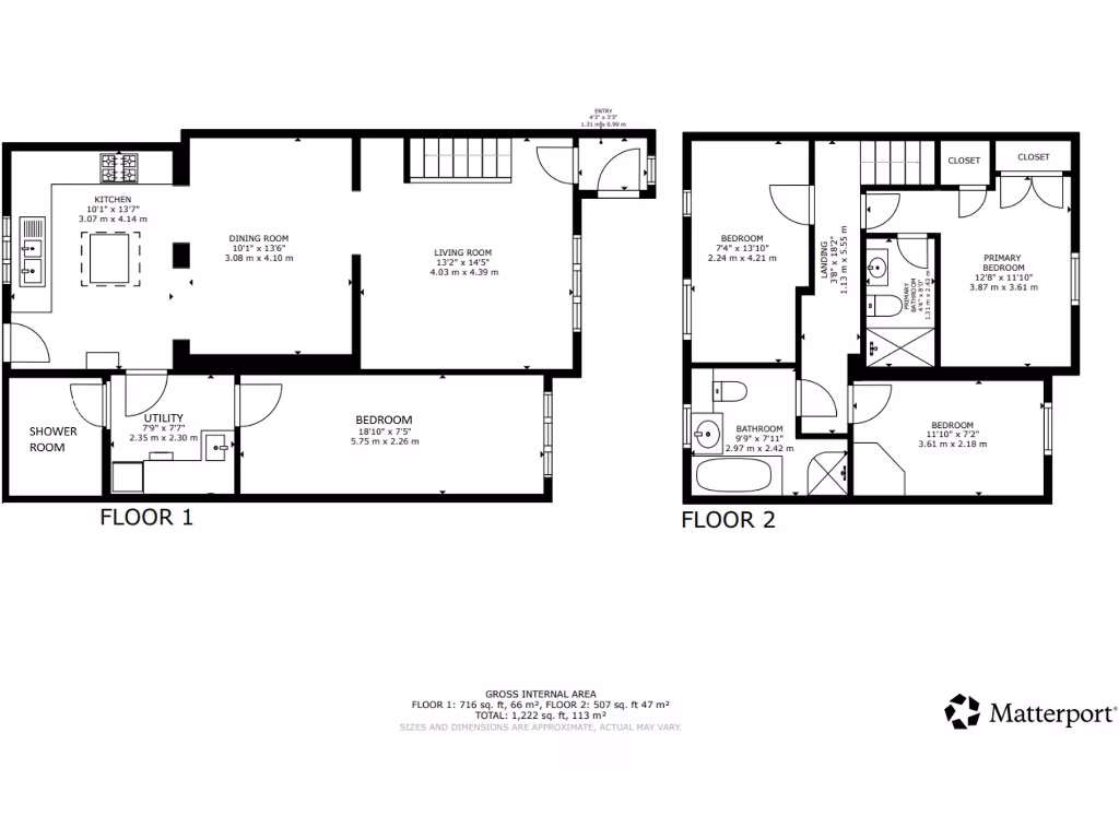
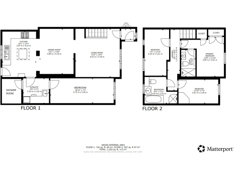
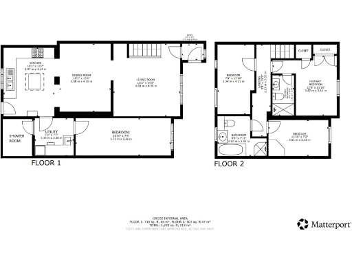
This extended four-bedroom semi-detached villa in Newton Mearns offers flexible family accommodation across two levels. The heart of the home is an impressive open-plan kitchen and dining area with a central island and integrated appliances — ideal for family meals and entertaining. A useful utility room leads to a ground-floor bedroom and shower room, which works well as a guest room, home office or playroom.
Externally the property is practical and low maintenance: a private driveway, neatly kept front lawn and an enclosed, paved rear garden with mature hedging provide privacy and off-street parking. Broadband speeds are fast and mobile signal is excellent, supporting home working and streaming.
Notable practical points: the overall internal size is relatively small at about 1,055 sq ft despite being extended, so room proportions are average. The wider local area is classified as deprived, which may influence long-term resale or rental appetite. The house is freehold, has no reported flood risk and lies within the East Renfrewshire school catchment, close to shops, cafés and leisure amenities.
This home will suit a growing family looking for a practical, low-maintenance house in a comfortable suburban setting, or buyers seeking a well-laid-out property with immediate liveability and scope to modernise decorative elements over time.
4 bedroom semi-detached house for sale in 14 Weaver Avenue, Newton Mearns, Glasgow, G77 — £295,000 • 4 bed • 2 bath • 1184 ft²
4 bedroom detached villa for sale in Mearns Road, Newton Mearns, G77 — £375,000 • 4 bed • 2 bath • 1561 ft²
4 bedroom detached house for sale in Castleton Drive, Newton Mearns, Glasgow, East Renfrewshire, G77 — £495,000 • 4 bed • 3 bath • 1820 ft²
4 bedroom semi-detached house for sale in Lavender Drive, Newton Mearns, Glasgow, East Renfrewshire, G77 — £305,000 • 4 bed • 3 bath • 1132 ft²
4 bedroom detached villa for sale in Beauly Crescent, Newton Mearns, G77 — £440,000 • 4 bed • 2 bath • 1527 ft²
4 bedroom detached house for sale in Fowlis Drive, Newton Mearns, G77 — £420,000 • 4 bed • 2 bath • 1421 ft²


























































































