**Standout Features:**
- **Two Double Bedrooms**
- **Two Good-Sized Reception Rooms**
- **Kitchen with Integrated Appliances**
- **South-East Facing Rear Garden**
- **No Chain – Quick Possession**
- **Gas Central Heating**
- **Average Council Tax Band A**
- **Requires Modernisation/Refurbishment**
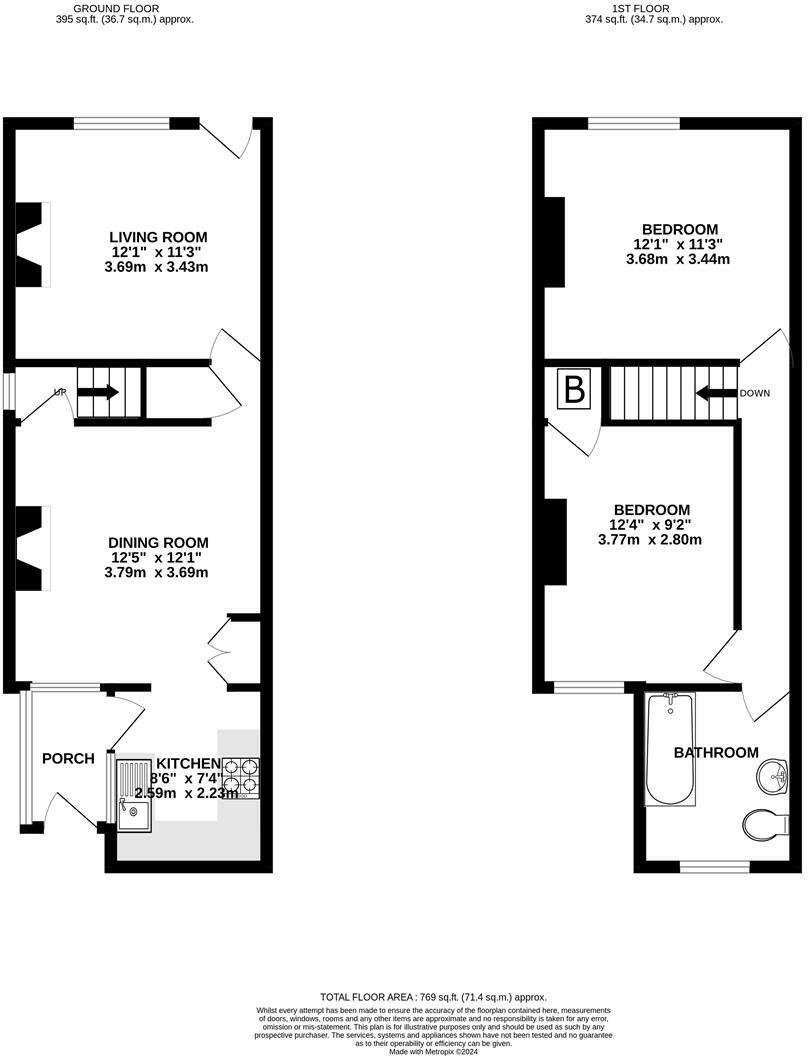
This charming two-bedroom end-terraced house on Hardstoft Road in Pilsley, Chesterfield, presents an exciting opportunity for first-time buyers, small families, or investors looking to add value through refurbishment. With a generous 769 sq. ft. of well-proportioned space, this home features two spacious reception rooms with characterful fireplaces, a kitchen equipped with integrated cooking appliances, and a practical rear entrance porch.
Both bedrooms are ample in size, while the good-sized bathroom provides essential amenities. The property is set on a generous plot with a south-east facing rear garden ideal for outdoor relaxation. Although it is in need of modernisation, this is a chance for buyers to personalize their own spaces. Conveniently located near local amenities, schools, and transport links, this home offers a balance of comfort and potential. With no chain involved, don't miss out on this unique opportunity to make this house a home!
2 bedroom terraced house for sale in Station Road, Pilsley, Chesterfield, Derbyshire, S45 — £130,000 • 2 bed • 1 bath • 991 ft²
2 bedroom terraced house for sale in Manor Road, Brimington, Chesterfield, S43 — £119,000 • 2 bed • 1 bath • 565 ft²
2 bedroom terraced house for sale in Manor Road, Brimington, Chesterfield, S43 — £129,000 • 2 bed • 1 bath • 545 ft²
2 bedroom semi-detached house for sale in Williamthorpe Road, North Wingfield, Chesterfield, S42 — £125,000 • 2 bed • 1 bath • 801 ft²
2 bedroom terraced house for sale in Old Hall Road, Brampton, Chesterfield, S40 — £120,000 • 2 bed • 1 bath • 1032 ft²
2 bedroom terraced house for sale in South Place, Chesterfield, S40 — £140,000 • 2 bed • 1 bath • 495 ft²














































