N22 5AU - 2 bedroom flat for sale in Lyndhurst Road, Wood Green, N22

View on Property Piper

2 bedroom flat for sale in Lyndhurst Road, Wood Green, N22

Summary - 192 LYNDHURST ROAD LONDON N22 5AU

2 bed 1 bath Flat

**Standout Features:**
- Stylish 2/3 bedroom maisonette with a private entrance
- Sunny south-facing rear garden—perfect for outdoor relaxation
- Ample loft space with potential for conversion (STPP)
- Beautiful blend of period features and contemporary finishes
- Newly fitted kitchen and large chic bathroom
- Chain-free sale with a share of freehold

This charming two/three-bedroom maisonette, ideally situated in the vibrant N22 postcode, offers an excellent opportunity for families and first-time buyers. The elegant blend of stunning Victorian features—including high ceilings, decorative moldings, and a feature fireplace—complements the modern style found in the newly fitted kitchen and spacious living areas. Enjoy the comfort of your sunny south-facing garden, perfect for gatherings or a tranquil retreat.

With multiple reception rooms, one of which can serve as a third bedroom, the property is adaptable to your needs. Benefit from easy access to excellent transport links within 0.8 miles of both Bowes Park British Rail and Wood Green Underground stations. The surrounding area boasts a variety of local shops and amenities, ensuring convenience at your doorstep.

Consider the potential for loft conversion—subject to planning permission—to create additional living space and further enhance the property's value. While the maisonette is in overall good condition, potential buyers should be aware of the existing solid brick walls, which do not have insulation. The property is affordably council-tax rated and accessibility to good local schools makes it ideal for families. Don’t miss out on this unique and inviting space—early viewing is recommended!

Property Details

Image Descriptions

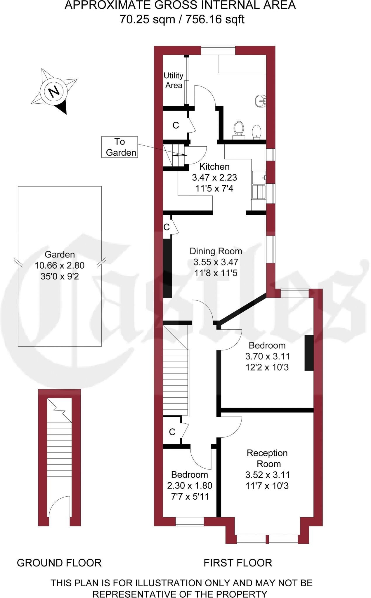
Floorplan Description

Rooms

Textual Property Features

Detected Visual Features

EPC Details

Nearby Schools

Nearest Bars And Restaurants

,,,,}

Nearest General Shops

,,}

Nearest Grocery shops

,,}

Nearest Supermarkets

,,}

Nearest Religious buildings

,,}

Nearest Medical buildings

,,,}

Nearest Airports

,}

Nearest Leisure Facilities

,,,,}

Nearest Tourist attractions

,,}

Nearest Train stations

,,,,}

Nearest Bus stations and stops

,,,,}

Nearest Hotels

,,}

Tags

Local Market Stats

AirBnB Data

Similar Properties

Meta

High Res Images

Compatible Images

Low res Images

Thumbnails

Raw Images

High Res Floorplan Images

Compatible Floorplan Images

Low res Floorplan Images

FloorplanImages Thumbnail

Raw Floorplan Images