G1 1EB - 1 bed historic city centre studio in Glasgow Central, G1 1EB

View on Property Piper

Studio flat for sale in Miller Street, Glasgow, G1

Summary - FLAT 1/13, CANADA COURT, 63, MILLER STREET G1 1EB

1 bed 1 bath Flat

Characterful studio with high ceilings in Glasgow’s lively Miller Street district..
- First-floor studio in a 1849 Renaissance building
- Tall ceilings and large sash windows, lots of natural light
- Controlled security entrance, lift access and permit parking
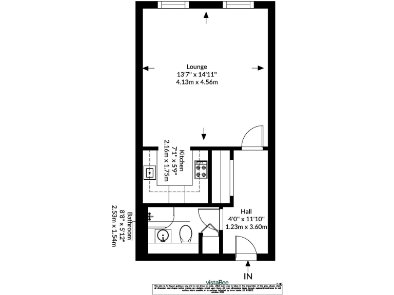
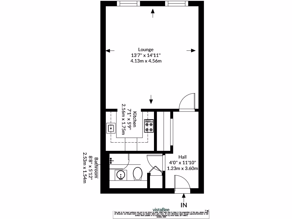
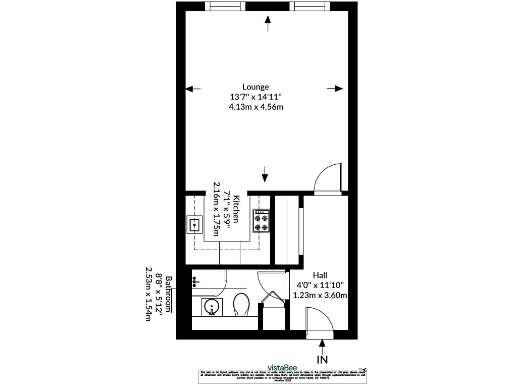
- Modest separate kitchen and three-piece shower-room
- Fast broadband and excellent mobile signal for working/studying
- Located in a busy student/foodie quarter with excellent amenities
- Area classified as very deprived — consider long-term value factors
- Tenure unknown; check service charges and maintenance history
A compact, characterful studio on Miller Street, set within a grand 1849 Renaissance building by James Salmon. Tall ceilings and large sash windows create a bright, airy feel unusual for a city-centre studio.

Set on the first floor with controlled security entrance, lift access and permit parking, the flat is practical for city living. The layout includes a generous main room that can accommodate living and sleeping zones, a separate modest kitchen and a three-piece shower-room. Fast broadband and excellent mobile signal make it well suited for studying or remote working.

The immediate area is a bustling, cosmopolitan student and foodie quarter with abundant bars, restaurants and transport links. That central location is a strong selling point for anyone prioritising convenience, nightlife and short commutes.

Notable practical points: the property sits in a very deprived area which may affect long-term capital appreciation for some buyers; tenure is not specified; internal space is compact and the kitchen is modest. Buyers should inspect for typical historic-building maintenance needs and confirm tenure and service charges before committing.

Property Details

Brochure Descriptions

Image Descriptions

Floorplan Description

Rooms

Textual Property Features

Target Audience

AI Tags

Detected Visual Features

Nearest Bars And Restaurants

,,,,}

Nearest General Shops

,,}

Nearest Grocery shops

,,}

Nearest Supermarkets

,,}

Nearest Religious buildings

,,}

Nearest Medical buildings

,,,}

Nearest Airports

,}

Nearest Leisure Facilities

,,,,}

Nearest Tourist attractions

,,}

Nearest Train stations

,,,,}

Nearest Bus stations and stops

,,,,}

Nearest Hotels

,,}

Tags

Local Market Stats

AirBnB Data

Similar Properties

Meta

High Res Images

Compatible Images

Low res Images

Thumbnails

Raw Images

High Res Floorplan Images

Compatible Floorplan Images

Low res Floorplan Images

FloorplanImages Thumbnail

Raw Floorplan Images