**Standout Features:**
- Modern 3-bedroom mid-terraced home in the sought-after Crown Park development
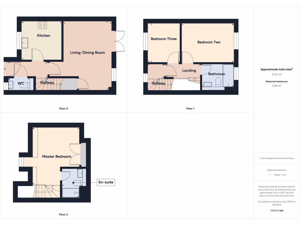
- Spacious living with three double bedrooms and two bathrooms
- Attractive fitted kitchen with integrated appliances and dining space
- Private enclosed garden with patio and artificial lawn
- Allocated parking for two cars
- Close proximity to local schools, parks, and amenities
**Concise Property Summary:**
Discover this modern three-bedroom mid-terraced home situated in the desirable Crown Park development in Saighton. Perfect for families or first-time buyers, this contemporary property features an impressive open-plan lounge/diner with French doors leading to a well-maintained rear garden, ideal for outdoor relaxation or entertaining.
Inside, you'll find a stylish kitchen complete with integrated appliances, as well as two refurbished bathrooms providing convenience for all residents. The master bedroom boasts built-in wardrobes along with an en-suite, enhancing comfort and privacy.
With reputable schools, a local pub, and a Co-op within walking distance, this property offers a fantastic blend of suburban tranquility and accessibility to Chester city center. Additional highlights include two allocated parking spaces and a small play area nearby, fostering a child-friendly atmosphere. Don’t miss out on the opportunity to make this charming home yours — expect high levels of interest!
4 bedroom detached house for sale in Alanbrooke Road, Saighton, CH3 — £400,000 • 4 bed • 2 bath • 1024 ft²
2 bedroom terraced house for sale in Arnhem Way, Saighton, Chester, CH3 — £235,000 • 2 bed • 1 bath • 381 ft²
3 bedroom property for sale in Green Howards Road, Chester, CH3 — £333,000 • 3 bed • 3 bath • 946 ft²
4 bedroom detached house for sale in Green Howards Road, Chester, CH3 — £459,950 • 4 bed • 2 bath • 1392 ft²
4 bedroom detached house for sale in Kohima Crescent, Saighton, CH3 — £555,000 • 4 bed • 2 bath • 1324 ft²
3 bedroom end of terrace house for sale in Brigadier Close, Saighton, CH3 — £295,000 • 3 bed • 2 bath • 896 ft²






























































