Character-filled two-bedroom near parks, schools and transport links.
Victorian first-floor conversion with ornate cornicing and original fireplace
Bright bay-windowed living room with views to the Pentland Hills
Principal bedroom with fitted wardrobe; bedroom two ideal as office
Stylish kitchen with integrated appliances; fast broadband available
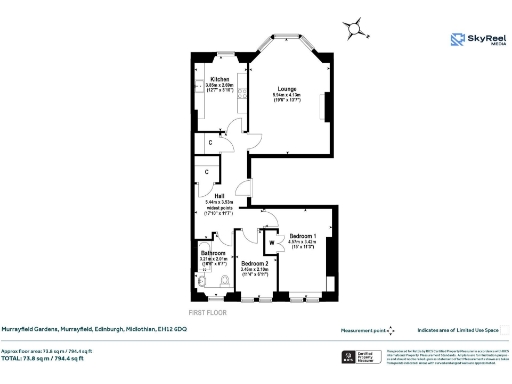
Freehold tenure; approximately 794 sq ft and six rooms total
Single bathroom only; may need updating for modern preferences
On-street parking only; no private driveway specified
EPC C and Council Tax Band E; higher running costs possible
This attractively presented two-bedroom first-floor conversion sits within a Victorian townhouse, offering 794 sq ft of comfortable living in Murrayfield. Period details such as bay windows, ornate cornicing and an original fireplace give the home character, while double glazing, gas central heating and integrated kitchen appliances provide everyday convenience.
The principal bedroom includes a fitted wardrobe and the second bedroom works well as a guest room or home office. A bright bay-windowed lounge enjoys long views towards the Pentland Hills and Murrayfield Stadium, and a shared entrance and well-kept communal hall reflect the building’s cared-for condition.
Practical points are clear: the property is freehold, has a garden (size unspecified), and benefits from fast broadband. Note that parking is on-street only, the property has a single bathroom and an EPC rating of C, and Council Tax is in the above-average Band E. The home will suit buyers seeking period character with modern comforts and manageable renovation potential.
2 bedroom flat for sale in 46/2 Murrayfield Gardens, Murrayfield, Edinburgh, EH12 6DF, EH12 — £375,000 • 2 bed • 1 bath • 797 ft²
2 bedroom flat for sale in 20 Saughton Crescent, Edinburgh, EH12 5SH, EH12 — £340,000 • 2 bed • 1 bath • 1118 ft²
2 bedroom flat for sale in 36/2 Murrayfield Avenue, Murrayfield, Edinburgh, EH12 6AY, EH12 — £410,000 • 2 bed • 1 bath • 931 ft²
2 bedroom apartment for sale in Corstorphine Road, Corstorphine, Edinburgh, EH12 — £399,000 • 2 bed • 2 bath • 950 ft²
3 bedroom apartment for sale in Western Terrace, Edinburgh, EH12 — £695,000 • 3 bed • 2 bath • 1961 ft²
2 bedroom flat for sale in 5 (1F1) Murrayfield Place, Murrayfield, Edinburgh, EH12 6AA, EH12 — £325,000 • 2 bed • 1 bath • 830 ft²


















































