Spacious three-bedroom new-build with abundant natural light and residents’ facilities.
23rd-floor apartment with excellent panoramic London skyline views
High on the 23rd floor of a 41-storey development, this three-double-bedroom apartment delivers expansive skyline views and a generous winter garden for outdoor city living. The open-plan living area, high ceilings and large windows create bright, modern interiors designed by award-winning architects. Residents benefit from on-site amenities including a 24-hour concierge, gym, screening room and communal lounge.
The property is a new-build leasehold with 992 years remaining, making long-term ownership straightforward. Its Zone 1 location places the South Bank, City and West End within easy reach, and fast broadband and excellent mobile signal suit both professionals and families who work from home. Local schools include several rated Good, and a wide range of shops, cafés and transport links are minutes away.
Notable cautions: the listing shows photos of a similar unit rather than this exact apartment, and there is conflicting information on the number of bathrooms in the data provided. Crime levels in the immediate area are above average, which may concern some buyers. Buyers should confirm service charges and ground rent, and view the exact apartment before committing.
Overall, this flat will appeal to buyers wanting a modern, well-specified home or a central London investment with strong amenity access and long lease security, provided they verify layout details and running costs.
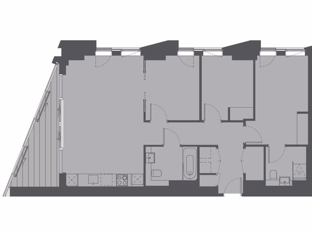
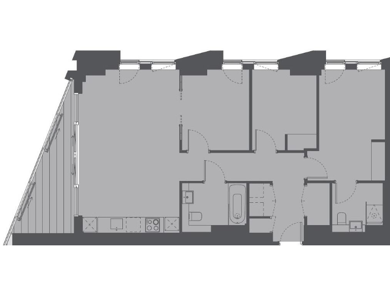
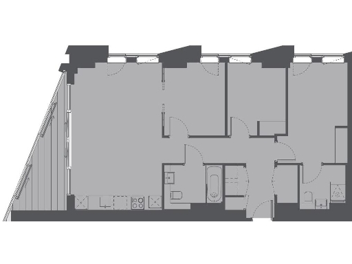
3 bedroom flat for sale in Southwark Bridge Road,
Borough, SE1 — £1,350,000 • 3 bed • 1 bath • 1337 ft²
1 bedroom flat for sale in Southwark Bridge Road,
Borough, SE1 — £650,000 • 1 bed • 1 bath • 537 ft²
3 bedroom flat for sale in Southwark Bridge Road,
Borough, SE1 — £1,000,000 • 3 bed • 2 bath • 956 ft²
2 bedroom flat for sale in Southwark Bridge Road,
Borough, SE1 — £1,600,000 • 2 bed • 2 bath • 1192 ft²
2 bedroom flat for sale in Southwark Bridge Road,
Borough, SE1 — £1,610,000 • 2 bed • 2 bath • 1509 ft²
2 bedroom flat for sale in Southwark Bridge Road,
Borough, SE1 — £1,610,000 • 2 bed • 2 bath • 1509 ft²


















































































