Stylish three-bedroom home near Leigh Broadway and top local schools.
Bay-fronted living room with lots of natural light
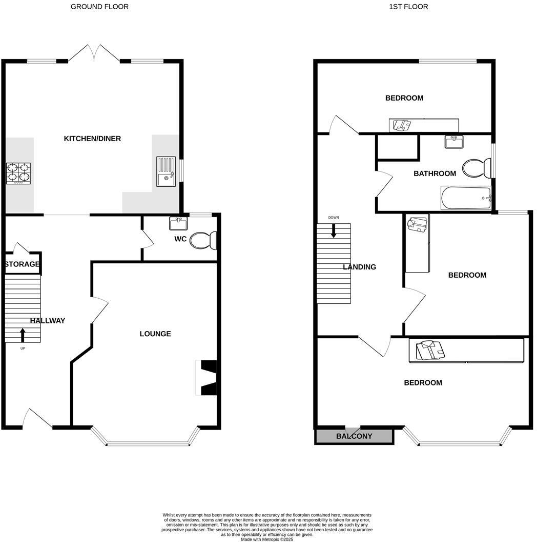
Light-filled and neatly finished, this three-bedroom semi-detached home on Rectory Grove suits growing families seeking turnkey comfort. The ground floor offers a large bay-fronted lounge and a contemporary open-plan kitchen-diner that makes everyday life and weekend entertaining effortless. Upstairs are three well-proportioned bedrooms and a family bathroom—the layout feels spacious for its overall footprint (882 sq ft).
Outside, a generous rear garden provides private outdoor space for children, pets and summer entertaining, while off-street parking adds practical convenience. The property sits on a tree-lined residential street within easy walking distance of Leigh Broadway, Old Leigh and several highly regarded primary and secondary schools, making the location a genuine selling point.
Practical details are straightforward: freehold tenure, mains gas central heating, double glazing and fast broadband/mobile signal. There is scope to extend further subject to planning permission (STPP) if you need more space or want to add value. The wider area is affluent with very low crime, good transport links and local amenities close by.
Buyers should note some material points: the external walls are cavity construction with assumed no added insulation, which may affect running costs and future retrofit work. The house has a single family bathroom and an average overall plot size, so while the garden is generous for play and entertaining, the plot is not large by regional standards. Council tax is moderate.
3 bedroom semi-detached house for sale in Rectory Grove, Leigh-On-Sea, SS9 — £595,000 • 3 bed • 2 bath • 1678 ft²
4 bedroom end of terrace house for sale in Elm Road, Leigh-On-Sea, SS9 — £695,000 • 4 bed • 3 bath • 1518 ft²
3 bedroom end of terrace house for sale in Oakleigh Park Drive, Leigh-On-Sea, SS9 — £550,000 • 3 bed • 1 bath • 872 ft²
3 bedroom terraced house for sale in Southsea Avenue, Leigh-on-sea, SS9 — £550,000 • 3 bed • 2 bath • 1605 ft²
4 bedroom semi-detached house for sale in Dundonald Drive, Leigh-on-sea, SS9 — £565,000 • 4 bed • 3 bath • 1540 ft²
3 bedroom semi-detached house for sale in Saffory Close, Leigh-On-Sea, SS9 — £400,000 • 3 bed • 3 bath • 969 ft²














































































