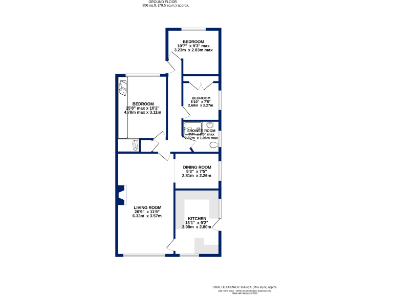
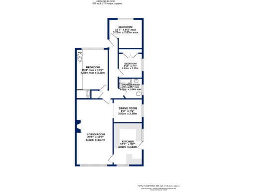
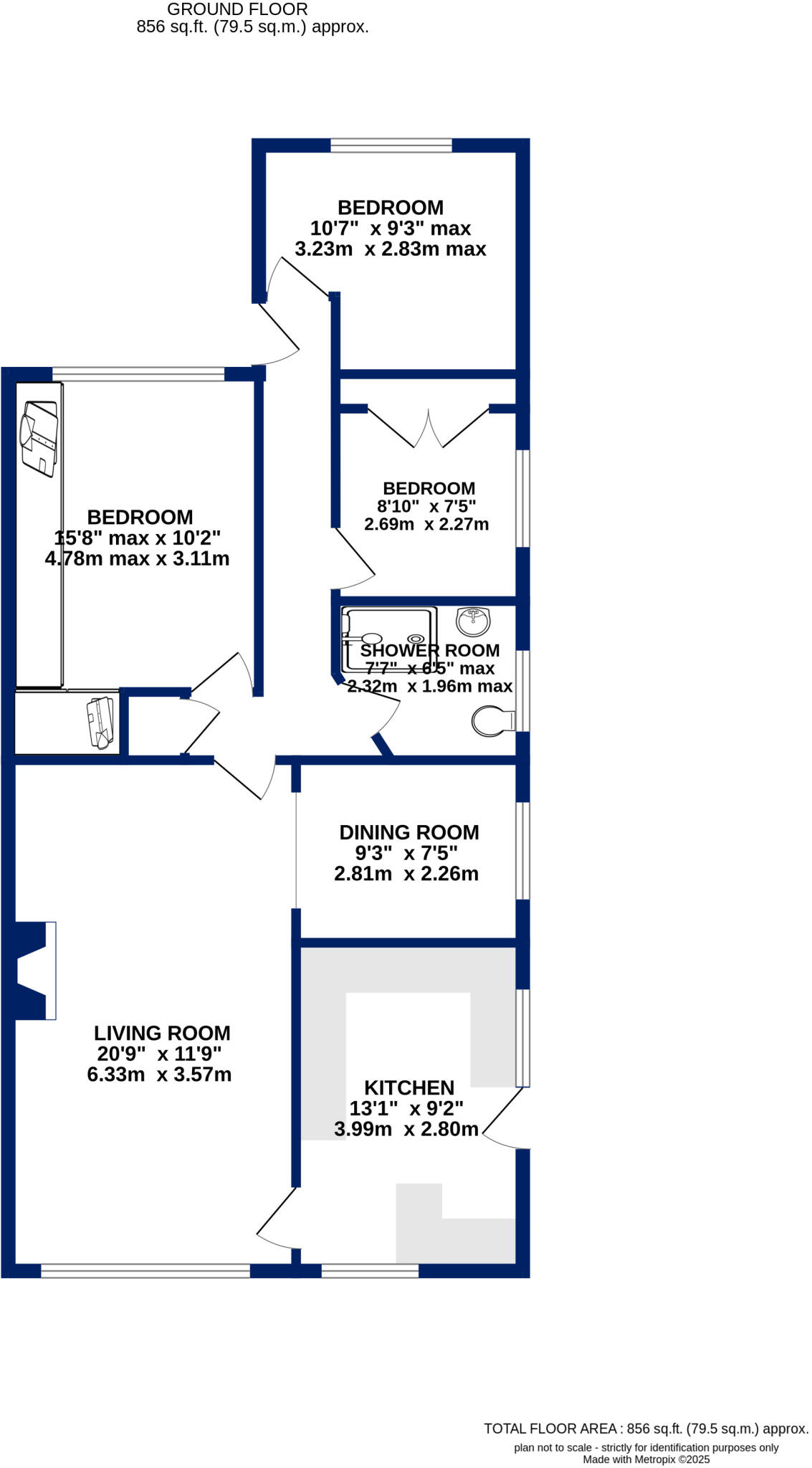
- Three-bedroom single-storey layout ideal for downsizing
- Extended rear increases living space and dining area
- Garage plus driveway offers secure off-road parking
- Fenced rear garden, private and low-maintenance
- Double glazing installed pre-2002; may need upgrading
- Built 1950s–1960s; potential for cosmetic and efficiency updates
- Excellent commuter links to M1 and Wakefield stations
- Local area records higher-than-average crime levels
This three-bedroom semi-detached bungalow on Thornleigh Avenue offers single-level living with no onward chain — a practical choice for downsizers seeking ease and space. The property has been extended to the rear, creating a larger footprint (approximately 856 sq ft) and a separate dining room for everyday meals or hosting visitors.
Light-filled living accommodation and a functional kitchen give the home immediate usability, while the fenced rear garden and garage plus off-road driveway provide convenient outdoor space and secure parking. Built in the mid-20th century, the bungalow retains traditional proportions and a straightforward layout that’s easy to adapt.
Buyers should note a few material considerations: the double glazing was installed before 2002 and may not offer current thermal performance, and the house — typical of its era — could benefit from updating to meet modern finishes and efficiency standards. The area has good transport links for commuters but records a higher-than-average local crime level, which prospective purchasers should factor into their decision.
Overall, this property suits someone looking to downsize without compromise on space and parking, and who is comfortable carrying out cosmetic updating or targeted improvements to boost comfort and value. Material information is available on request for a detailed review prior to offer.































































