Extended cottage-style home with large wrap-around garden in quiet Tadworth location.
Three-bedroom extended end-of-terrace with character features
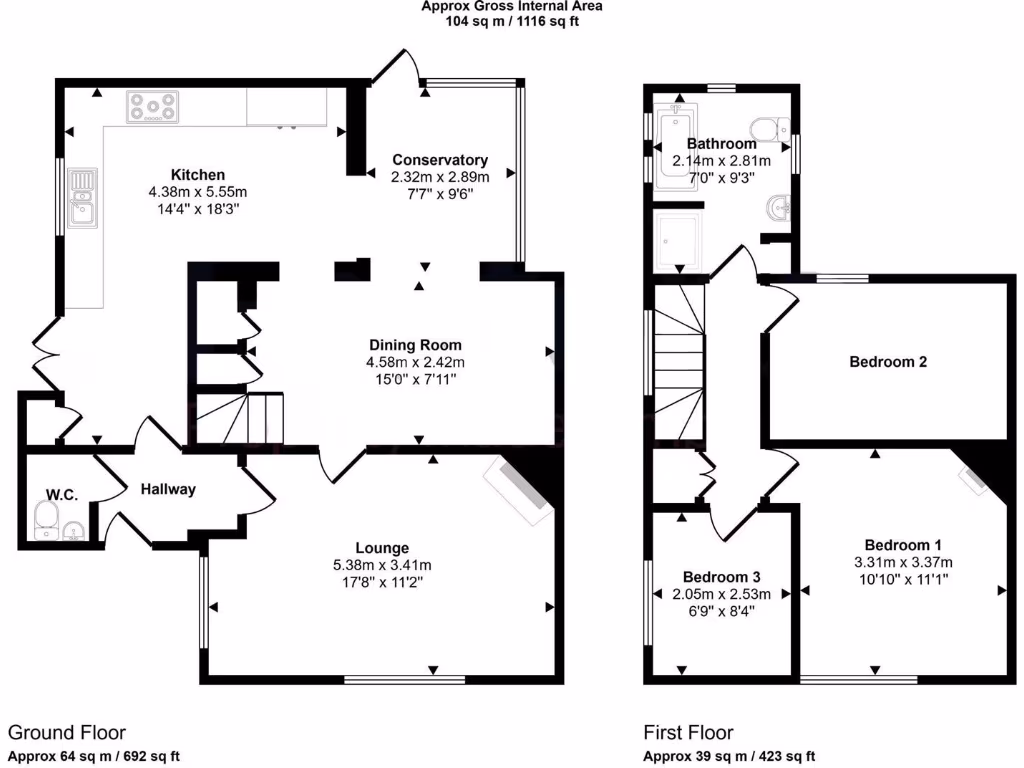
Set on Chapel Road in Tadworth, this extended three-bedroom end-of-terrace home combines mid-20th-century character with contemporary living. The ground floor flows from lounge to dining area and conservatory, opening onto a generous wrap-around garden of approximately 75ft — ideal for family play, entertaining or easing into retirement.
Upstairs offers three well-proportioned bedrooms and a modern four-piece bathroom. Fixtures include oak-effect flooring in key rooms, UPVC double glazing and working fireplaces that retain period charm. The layout is practical and traditional, giving scope for minor updating or layout tweaks to suit a growing family or downsizer.
Practical attributes include freehold tenure, very low local crime, no flood risk and affordable council tax. Note the property sits in an area with slow reported broadband speeds and has a single main bathroom — factors to consider for home working or larger households. Overall, the home is a comfortable, characterful choice in an affluent, peaceful neighbourhood with convenient access to local schools, shops and country walks.
3 bedroom detached house for sale in Tadworth Street, Tadworth, KT20 — £795,000 • 3 bed • 1 bath • 1101 ft²
3 bedroom semi-detached house for sale in Ashurst Road, Tadworth, KT20 — £650,000 • 3 bed • 1 bath • 1477 ft²
2 bedroom terraced house for sale in Chapel Road, Tadworth, KT20 — £400,000 • 2 bed • 1 bath • 611 ft²
3 bedroom end of terrace house for sale in Chapel Road, Tadworth, KT20 — £795,000 • 3 bed • 2 bath • 1783 ft²
3 bedroom semi-detached house for sale in Tadworth Street, Tadworth, KT20 — £799,950 • 3 bed • 1 bath • 1072 ft²
3 bedroom semi-detached house for sale in Whitegate Way, Tadworth, KT20 — £500,000 • 3 bed • 1 bath • 850 ft²














































































































