Compact modern living with balcony and strong transport links.
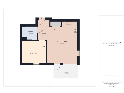
First-floor one-bedroom, 549 sq ft (approx) with south courtyard aspect
This well-presented one-bedroom apartment in Cambium Apartments offers a compact, modern home in a sought-after SW19 location. Positioned on the first floor and facing the south courtyard, the flat benefits from a private 64 sq ft balcony, open-plan living with integrated kitchen appliances, and underfloor heating provided via the building’s community scheme.
The apartment is practical for first-time buyers seeking low-maintenance city living. The layout maximises its 549 sq ft with a comfortable bedroom, contemporary bathroom and medium-sized living/kitchen area with neutral finishes. Bike storage and an EPC rating of B add everyday convenience and efficiency.
Important tenure and running-cost facts are clear: the property is leasehold, with an average annual service charge of £2,765 and ground rent of £350. The flat is currently let, offering immediate rental income for investors or requiring notice to gain vacant possession. Broadband speeds are average locally and crime levels are average for the area.
Located between Putney High Street and Wimbledon Village, the address delivers good transport links (Putney nearby), green space and a mix of local amenities and schools with strong Ofsted ratings. Prospective buyers should factor service charges, ground rent and tenancy status into affordability and timing plans.
3 bedroom flat for sale in Beatrice Place, London, SW19 — £750,000 • 3 bed • 2 bath • 1000 ft²
2 bedroom apartment for sale in Beatrice Place, Southfields, London, SW19 — £625,000 • 2 bed • 2 bath • 753 ft²
1 bedroom apartment for sale in Scott Avenue, Putney, London, SW15 — £335,000 • 1 bed • 1 bath • 582 ft²
1 bedroom flat for sale in Windlesham Grove, Southfields, London, SW19 — £300,000 • 1 bed • 1 bath • 480 ft²
1 bedroom flat for sale in Scott Avenue, West Hill, London, SW15 — £335,000 • 1 bed • 1 bath • 570 ft²
1 bedroom flat for sale in Selhurst Close, Southfields, London, SW19 — £325,000 • 1 bed • 1 bath • 505 ft²






































































