**Standout Features:**
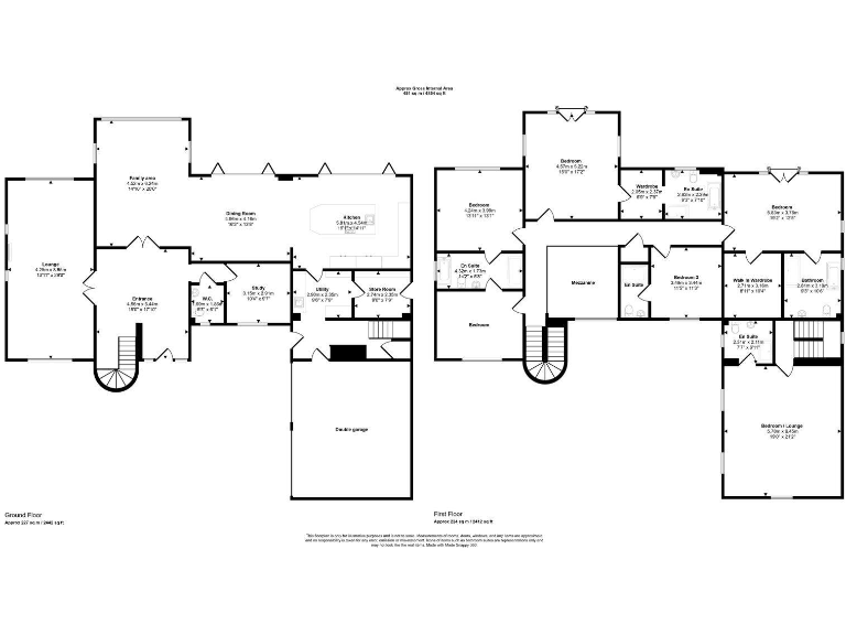
- Luxurious six-bedroom family home (built in 2020) spanning nearly 5,000 sq ft
- Set on a spacious south-facing plot with breathtaking views of Roseberry Topping
- Open-plan kitchen with high-end appliances and bi-fold doors leading to landscaped gardens
- Impressive double garage with a self-contained suite above—ideal for guests or as a private office
- Located in a prestigious small development providing privacy and comfort
- High-spec interior featuring underfloor heating and expansive living areas
**Concerns:**
- High crime rate in the area
- Broadband speeds are very slow
- Council tax band is quite expensive
Nestled in a tranquil hamlet in Nunthorpe, this extraordinary detached home offers exquisite living spaces designed for the contemporary family. With six generous bedrooms and five well-appointed bathrooms, every detail sings of luxury and practicality. Enjoy cozy gatherings in the stunning open-plan kitchen that spills out onto beautifully maintained gardens, offering unrivaled views of the picturesque Roseberry Topping.
The spacious double garage includes a versatile suite above, perfect for accommodating guests or functioning as a home office. This property uniquely blends elegance with functionality, presenting exceptional potential for both peaceful family living and entertaining. While the area does experience a high crime rate and slow broadband, the outstanding educational standards of local schools, including the highly-rated Nunthorpe Primary Academy, provide vital support for families. Don’t miss this opportunity to own a luxurious family home in an exclusive setting—properties like this are rare and highly sought after!
5 bedroom detached house for sale in Upsall Hall Gardens, Nunthorpe, TS7 — £1,200,000 • 5 bed • 4 bath • 4693 ft²
6 bedroom detached house for sale in Upsall Hall Gardens, Nunthorpe, TS7 — £1,295,000 • 6 bed • 4 bath • 5000 ft²
5 bedroom detached house for sale in Rush Gardens, Nunthorpe, TS7 — £420,000 • 5 bed • 2 bath • 2264 ft²
4 bedroom detached house for sale in Great West Gardens, Nunthorpe, TS7 — £365,000 • 4 bed • 2 bath • 1477 ft²
4 bedroom detached bungalow for sale in Stokesley Road, Nunthorpe, Middlesbrough, TS7 — £675,000 • 4 bed • 3 bath • 2218 ft²
4 bedroom detached house for sale in Brass Wynd, Nunthorpe, TS7 — £480,000 • 4 bed • 3 bath • 2820 ft²






































































































































































