**Standout Features:**
- No forward chain and situated in a secluded location
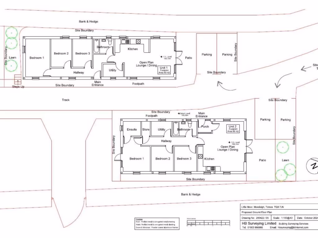
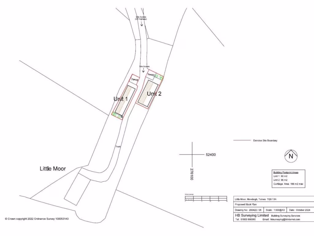
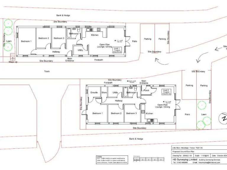
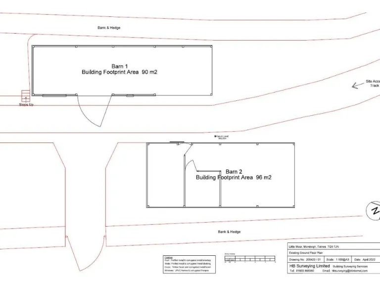
- Three-bedroom detached bungalow with planning permission for two additional dwellings
- Private parking and stunning countryside views
- Expansive 7.3 acres of pasture land ideal for agricultural use or personal enjoyment
- Excellent mobile signal and a friendly village atmosphere
**Notable Concerns:**
- Requires modernization
- Broadband speeds are notably slow
- Limited public amenities within immediate vicinity
Discover this unique opportunity to own Little Moor, a charming three-bedroom detached bungalow nestled in the picturesque village of Moreleigh. Set on a generous 7.3 acres, this property boasts far-reaching countryside views and the added benefit of Class Q planning approved for two additional three-bedroom dwellings, allowing for development potential or investment opportunities.
Inside, the mid-century bungalow features a practical layout with a cozy kitchen overlooking the rear garden, a spacious living room, and a formal dining area, complemented by two inviting double bedrooms that make the most of the scenic vistas. The property is chain-free, making it ready for your immediate enjoyment or renovation plans tailored to your vision.
While the property does require modernization and has slow broadband speeds, this can be an opportunity to curate your perfect retreat in this highly sought-after village. With no flood risk and low crime rates, Little Moor offers a safe and peaceful place to call home. Embrace the lifestyle of rural living while being conveniently located within a short drive of Totnes and Kingsbridge, making it ideal for families and investors alike. Act now to explore the potential this property holds before it’s gone!
Plot for sale in Development Site For 4 Dwellings, Moreleigh, South Hams, TQ9 — £250,000 • 1 bed • 1 bath
Land for sale in 7.28 Acres - South Allington, Kingsbridge, Devon, TQ7 — £45,000 • 1 bed • 1 bath
Farm for sale in 195.35 Acres - South Allington, Kingsbridge, Devon, TQ7 — £2,210,000 • 6 bed • 3 bath • 4200 ft²
Land for sale in 69.50 Acres - South Allington, Kingsbridge, Devon, TQ7 — £600,000 • 1 bed • 1 bath
Light industrial facility for sale in Blackawton, Totnes, TQ9 — £150,000 • 1 bed • 1 bath • 1378 ft²
6 bedroom detached house for sale in 18.85 Acres - South Allington, Kingsbridge, Devon, TQ7 — £895,000 • 6 bed • 3 bath • 4282 ft²














































































































