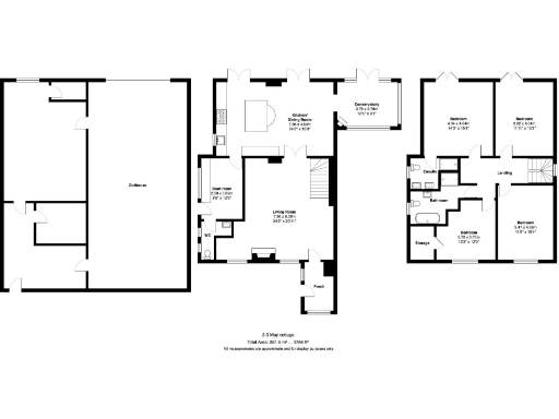
Four-bedroom farmhouse on 4 acres with workshop, stables and annex potential.
- 4 bedrooms, principal suite with Juliet balcony and en suite
- Large country kitchen with island, Smeg range and underfloor heating
- Conservatory with glass roof and log burner
- Detached workshop with kitchen, bathroom and services (annexe potential)
- Stables and 3.5 acres agricultural land with separate access
- Off-street parking, double gated side access, block‑paved driveway
- Listed as semi‑detached though description describes a detached cottage; verify
- Hamlet/isolated location — limited local services and longer journeys possible
Set in an established farming community, this farmhouse-style property sits on a substantial 4-acre plot with 3.5 acres of agricultural land and separate access via Course Lane. The heart of the home is a large country kitchen with oak beams, flagstone floors with underfloor heating, a Smeg range and a sunny conservatory. Ground-floor living includes a spacious living room with a brick fireplace and a practical utility/boot room. Upstairs offers four double bedrooms, a principal suite with a Juliet balcony and an en suite with underfloor heating, plus a family bathroom with a freestanding bath.
Outdoor space is a major asset: detached workshop with plumbing, electricity, kitchen and bathroom (suitable for conversion to an independent annexe subject to consents), detached stables and significant paddock/agricultural land ideal for equestrian use or smallholding. The property benefits from off-street parking, secure double gates, excellent mobile signal, fast broadband and a very low flood and crime risk in a very affluent area.
Practical points to note: the listing records the property as semi‑detached while the description describes a detached cottage — this should be verified. The house occupies a hamlet/isolated location, which suits countryside buyers but may mean longer journeys for some services and commuting. There is no specific mention of recent structural surveys or energy performance; buyers should arrange full surveys and checks, and confirm permitted use or planning for any intended annexe or development of outbuildings.
Overall, this property will suit families, equestrian owners or buyers seeking a large country home with versatile outbuildings and substantial land. The combination of comfortable, characterful living spaces and strong potential for an annex or smallholding makes it a rare countryside opportunity, provided practical checks and any conversion consents are completed.
4 bedroom semi-detached house for sale in Back Lane, Newburgh, WN8 — £725,000 • 4 bed • 2 bath • 3700 ft²
4 bedroom detached house for sale in Dicconsons Lane, Halsall, L39 — £1,100,000 • 4 bed • 2 bath • 3000 ft²
5 bedroom country house for sale in Sephton Farm House, Pimbo Lane, Upholland, WN8 9QQ, WN8 — £695,000 • 5 bed • 3 bath • 3181 ft²
3 bedroom detached house for sale in Greenacres, Dawbers Lane, Euxton PR7 6EF, PR7 — £800,000 • 3 bed • 2 bath • 1871 ft²
5 bedroom farm house for sale in Trigg Lane, Heapey, PR6 — £1,250,000 • 5 bed • 3 bath • 2781 ft²
3 bedroom detached house for sale in Hall Lane, Bispham, WN8 7BD, WN8 — £875,000 • 3 bed • 3 bath • 2542 ft²






















































































































































































































































