SO53 3HL - 3 bedroom semidetached house for sale in Chestnut Rise, Cha…

View on Property Piper

3 bedroom semi-detached house for sale in Chestnut Rise, Chandler's Ford, SO53

Summary - 3 CHESTNUT RISE CHANDLER'S FORD EASTLEIGH SO53 3HL

3 bed 1 bath Semi-Detached

**Standout Features:**
- **Recently Renovated:** High-quality finishes throughout.
- **Spacious Living Areas:** Open-plan kitchen/dining/living space and bright living room with large bay windows.
- **Ideal for Families:** Three well-sized bedrooms, including a large master.
- **Modern Amenities:** Bathroom with underfloor heating and a utility area.
- **Outdoor Space:** Landscaped rear garden with tiered features, patio, and artificial grass.
- **Convenience:** Garage, parking for two cars, EV charging point.
- **Excellent Location:** Easy access to major transport links, shops, and schools.

**Summary Description:**
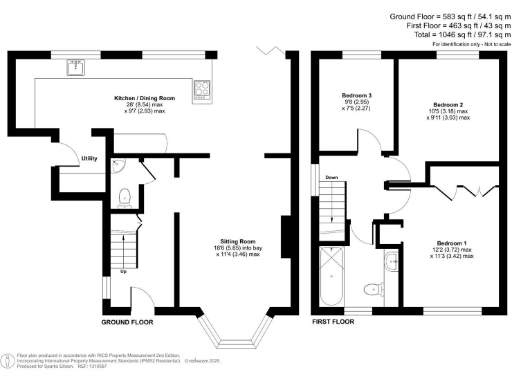
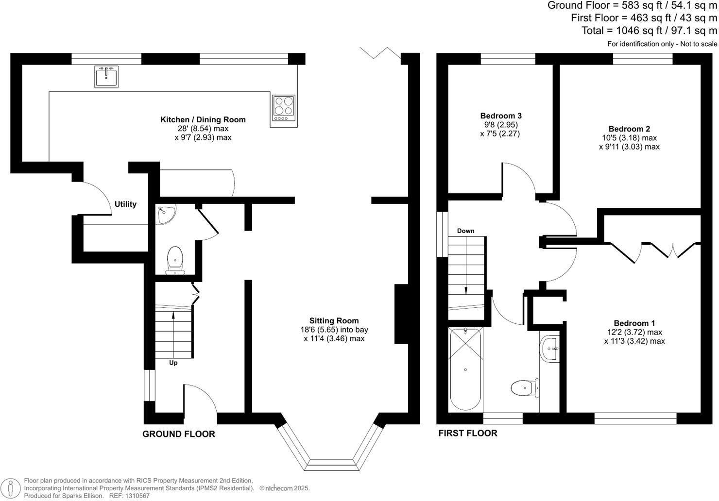
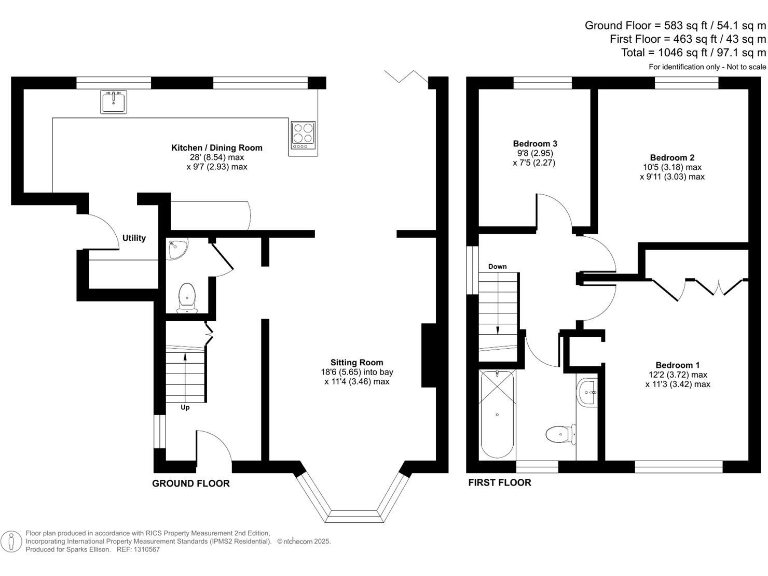
This beautifully renovated semi-detached home in a tranquil Georgian-style cul-de-sac offers the perfect blend of contemporary comfort and classic charm. Spanning 1,046 sq ft, the property features a bright, spacious living room and an inviting open-plan kitchen/dining area with bi-fold doors leading to the landscaped garden—ideal for family gatherings and outdoor entertaining. The upper level boasts a generous master bedroom with built-in wardrobes, alongside two additional, well-proportioned bedrooms, all serviced by a stylish family bathroom featuring underfloor heating.

Families will appreciate the solid local amenities, including nearby primary and secondary schools with good Ofsted ratings, making this an excellent choice for educational opportunities. The property also includes a garage and parking for up to two vehicles, along with an environmentally-friendly EV charging point. Don’t miss out on this gem that combines modern living in a sought-after community; schedule your viewing today!

Property Details

Brochure Descriptions

Image Descriptions

Floorplan Description

Rooms

Textual Property Features

Detected Visual Features

EPC Details

Nearby Schools

Nearest Bars And Restaurants

,,,,}

Nearest General Shops

,,}

Nearest Grocery shops

,,}

Nearest Supermarkets

,,}

Nearest Religious buildings

,,}

Nearest Medical buildings

,,,}

Nearest Airports

}

Nearest Leisure Facilities

,,,,}

Nearest Tourist attractions

,,}

Nearest Train stations

,,,,}

Nearest Bus stations and stops

,,,,}

Nearest Hotels

,,}

Tags

Local Market Stats

Similar Properties

Meta

High Res Images

Compatible Images

Low res Images

Thumbnails

Raw Images

High Res Floorplan Images

Compatible Floorplan Images

Low res Floorplan Images

FloorplanImages Thumbnail

Raw Floorplan Images