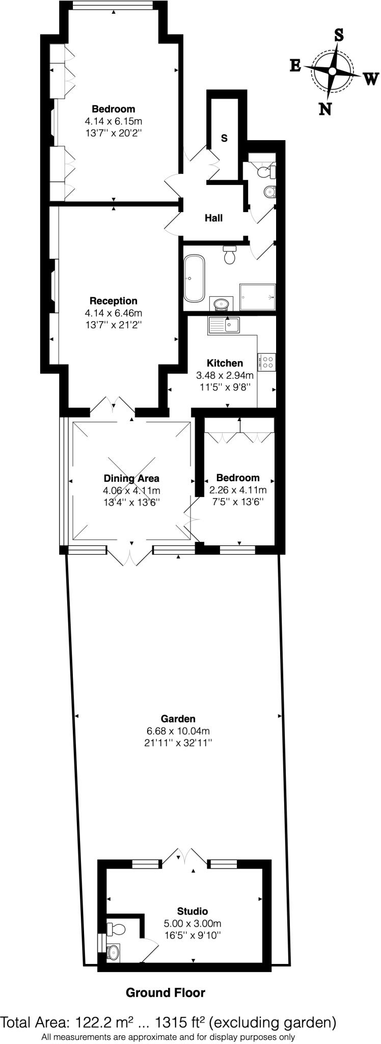
**Standout Features:**
- Two double bedrooms with beautiful Victorian details
- Spacious garden with a 46-foot garden studio/summer house
- Share of freehold, enhancing property value and flexibility
- Bright reception room with high ceilings and original features 
- Modern kitchen and dining area that opens to the garden
- Excellent transport links just a short walk to Queens Park Station
Nestled on a tranquil street in Queens Park NW6, this exquisite two-bedroom period garden flat seamlessly marries historic charm with modern comfort. Enjoy spacious living in a bright reception room adorned with ornate plasterwork and a decorative fireplace, leading to a light-filled conservatory dining area that enhances your entertaining experience. The contemporary kitchen, with ample storage, flows directly into the garden, perfect for summer gatherings. 
Both generously sized bedrooms exhibit Victorian elegance, while the main bathroom offers a stylish four-piece suite with underfloor heating. Outside, the beautifully maintained 46-foot garden features a versatile studio/summer house—a perfect retreat for a home office or creative escape. 
With strong local amenities, nearby recreation spaces, and top-rated schools, this property presents a rare opportunity for families and first-time buyers looking for a balance of comfort and community. Given its prime location and unique features, act quickly to secure a viewing—properties like this don’t stay on the market for long!
 2 bedroom flat for sale in Brondesbury Villas, Queens Park, NW6 — £1,000,000 • 2 bed • 2 bath • 1000 ft²
 2 bedroom flat for sale in Brondesbury Villas, Queens Park, NW6 — £1,000,000 • 2 bed • 2 bath • 1000 ft² 2 bedroom flat for sale in Brondesbury Villas, Queens Park, NW6 — £1,250,000 • 2 bed • 1 bath • 1308 ft²
 2 bedroom flat for sale in Brondesbury Villas, Queens Park, NW6 — £1,250,000 • 2 bed • 1 bath • 1308 ft² 2 bedroom flat for sale in Brondesbury Road, London, NW6 — £1,565,000 • 2 bed • 2 bath • 1438 ft²
 2 bedroom flat for sale in Brondesbury Road, London, NW6 — £1,565,000 • 2 bed • 2 bath • 1438 ft² 2 bedroom apartment for sale in Brondesbury Villas, Queen's Park, London, NW6 — £560,000 • 2 bed • 1 bath • 583 ft²
 2 bedroom apartment for sale in Brondesbury Villas, Queen's Park, London, NW6 — £560,000 • 2 bed • 1 bath • 583 ft² 2 bedroom apartment for sale in Bradiston Road, London, W9 — £600,000 • 2 bed • 2 bath • 640 ft²
 2 bedroom apartment for sale in Bradiston Road, London, W9 — £600,000 • 2 bed • 2 bath • 640 ft² 2 bedroom apartment for sale in Saltram Crescent, Maida Vale, London, W9 — £625,000 • 2 bed • 2 bath • 626 ft²
 2 bedroom apartment for sale in Saltram Crescent, Maida Vale, London, W9 — £625,000 • 2 bed • 2 bath • 626 ft²










































