South-facing garden with detached office and parking for six.
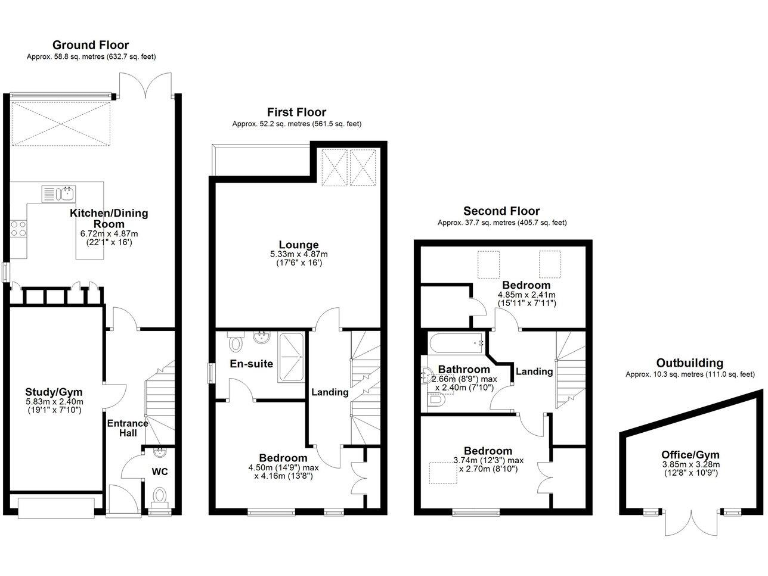
- Spacious three-bedroom layout across three floors
Set over three floors in sought-after Hawkinge, this well-presented three-bedroom semi-detached house balances family living with practical extras. The extended driveway and off-street parking for up to six cars is a rare benefit for the area, while the sunny south-facing rear garden provides a private outdoor space for children and socialising.
Internally the property offers flexible living: a stylish kitchen/diner for everyday family life and entertaining, a bright first-floor lounge with elevated views, and a converted garage currently used as a home office or gym. The principal bedroom includes an en-suite; a modern family bathroom and ground-floor W.C. add convenience for busy households. There is also a detached external office suited to remote working.
Practical strengths include freehold tenure, fast broadband, excellent mobile signal and a low local crime rate. Note the plot is modest in size and the house is arranged across multiple storeys, which may be less suitable for limited mobility. Council tax is above average. Overall, this house offers space, adaptability and strong local schools in an affluent, well-connected village setting.
4 bedroom detached house for sale in Trunley Way, Hawkinge, Folkestone, CT18 — £425,000 • 4 bed • 3 bath • 1180 ft²
4 bedroom detached house for sale in Hawkinge, CT18 — £695,000 • 4 bed • 2 bath • 2419 ft²
3 bedroom semi-detached house for sale in Underwood, Hawkinge, Folkestone, Kent, CT18 — £350,000 • 3 bed • 1 bath • 1001 ft²
3 bedroom semi-detached house for sale in Hawkinge, Folkestone, CT18 — £365,000 • 3 bed • 2 bath • 951 ft²
5 bedroom detached house for sale in Trunley Way, Hawkinge, Folkestone, CT18 — £475,000 • 5 bed • 3 bath • 1552 ft²
3 bedroom semi-detached house for sale in Cricketers Close, Hawkinge, CT18 — £400,000 • 3 bed • 1 bath • 1160 ft²






























































