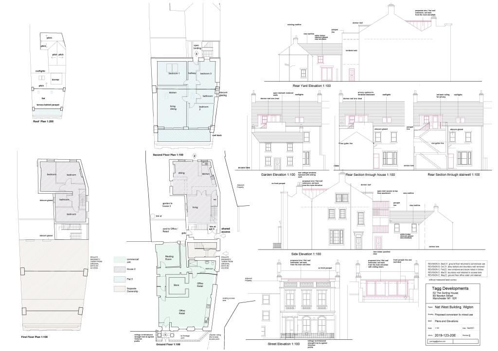
Period mixed-use building with redevelopment potential on Wigton High Street, sold at auction..
4 bedroom first-floor apartment above large ground floor commercial former bank|Prominent Georgian stone façade, sash windows, high ceilings and period features|Total ground floor area approx 145 sq m (1,560 sq ft); overall size average|Expired 2022 planning permission for further conversions — check with council|EPC ratings: unit 14 C, unit 14A G — significant energy upgrade likely|To be sold by online auction; buyers premium and legal costs apply|Tenure not specified; purchasers must confirm title and occupancy details|Requires renovation and modernisation; potential for redevelopment subject to consents
This period mid-terrace on Wigton High Street offers a rare mixed-use opportunity in a small market town. The property combines a former banking hall at ground floor level with a substantial four-bedroom apartment above, presenting immediate rental or owner-occupation potential alongside scope for redevelopment subject to consents.
Important practical and legal matters are clear: the lot will be sold by public online auction, bidding closes 24 September 2025, and purchasers must consult the legal pack for fees—including a buyer’s premium—and any addendum. Planning permission for further conversions was approved in 2022 but has now expired; interested buyers should verify current planning status with Cumberland Council before bidding.
The building retains strong period character—stone façade, sash windows and high ceilings—offering good visual appeal and potential for value uplift. However, the property is dated in places (EPCs: 14 = C; 14a = G), likely needs renovation and modernisation, and the tenure is unspecified in the details provided. These are material factors for financing, insurance and refurbishment costings.
Commercial property for sale in 14/14a High Street, Wigton, Cumbria, CA7 9NJ, CA7 — £100,000 • 1 bed • 1 bath • 1560 ft²
Semi-detached house for sale in Water Street, Wigton, Cumbria, CA7 — £81,000 • 1 bed • 1 bath
Land for sale in Site at Former Warehouse, Meeting House Lane, Wigton, Cumbria CA7 9ED, CA7 — £1,000 • 1 bed • 1 bath • 1955 ft²
Commercial property for sale in 30 High Street, Wigton, Cumbria, CA7 — £160,000 • 1 bed • 1 bath • 4276 ft²
3 bedroom semi-detached house for sale in Station Road, Wigton, CA7 — £75,000 • 3 bed • 3 bath • 1311 ft²
3 bedroom end of terrace house for sale in Market Hill, Wigton, CA7 — £145,000 • 3 bed • 3 bath • 2086 ft²














