Turn-key starter home with versatile loft and low-maintenance garden.
Three bedrooms with fitted wardrobes
Converted loft with Velux windows — versatile extra space
Fitted kitchen with integrated appliances
Conservatory with new cosy roof
Small rear garden with composite decking
Single shower room only
Double glazing installed before 2002 (older units)
Freehold; new boiler recently installed
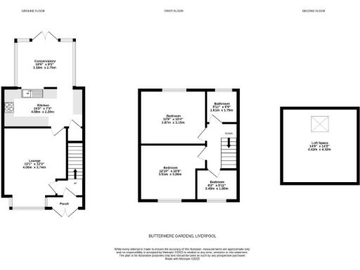
This neat mid-terraced house on Buttermere Gardens offers a practical, move-in ready option for first-time buyers. The front lounge with Amtico flooring and a fireplace opens to a high-gloss fitted kitchen and a conservatory with a new cosy roof — an easy-living layout for everyday family life. A new boiler and integrated kitchen appliances reduce immediate maintenance costs.
Upstairs are three bedrooms with fitted wardrobes and a modern shower room. The converted loft with Velux windows provides versatile extra space for a home office, play area, or storage, adding useful accommodation despite the property’s modest footprint (approx. 718 sq ft).
Outside, the small rear garden is low-maintenance with composite decking, and there’s an appealing front garden. The house is freehold, sits in a largely affluent, very low-crime area, and benefits from fast broadband and mains gas central heating.
Notable limitations: the overall size is compact and there’s only one shower room, so storage and family routines will need planning. The double glazing was installed before 2002 and may be less efficient than newer units. The plot is small, so the outdoor space is best suited to low-maintenance landscaping rather than large gatherings.
3 bedroom terraced house for sale in Port Causeway, Bromborough, CH62 — £185,000 • 3 bed • 1 bath • 926 ft²
4 bedroom semi-detached house for sale in Southport Road, Bootle, Merseyside, L20 — £235,000 • 4 bed • 2 bath • 1199 ft²
3 bedroom house for sale in Ford Way, Upton, CH49 — £200,000 • 3 bed • 1 bath • 1378 ft²
3 bedroom terraced house for sale in Eastbourne Road, Walton, Liverpool, Merseyside, L9 — £185,000 • 3 bed • 1 bath • 1109 ft²
3 bedroom terraced house for sale in Gorsey Lane, Wallasey, Wirral, CH44 — £170,000 • 3 bed • 1 bath • 826 ft²
3 bedroom semi-detached house for sale in Brenda Crescent, Thornton, Merseyside, L23 — £380,000 • 3 bed • 1 bath • 1317 ft²














































































































































