Chain-free two-bed with long garden and garage access, ideal for buyers who will upgrade.
Freehold Victorian terraced house with bay-fronted living room
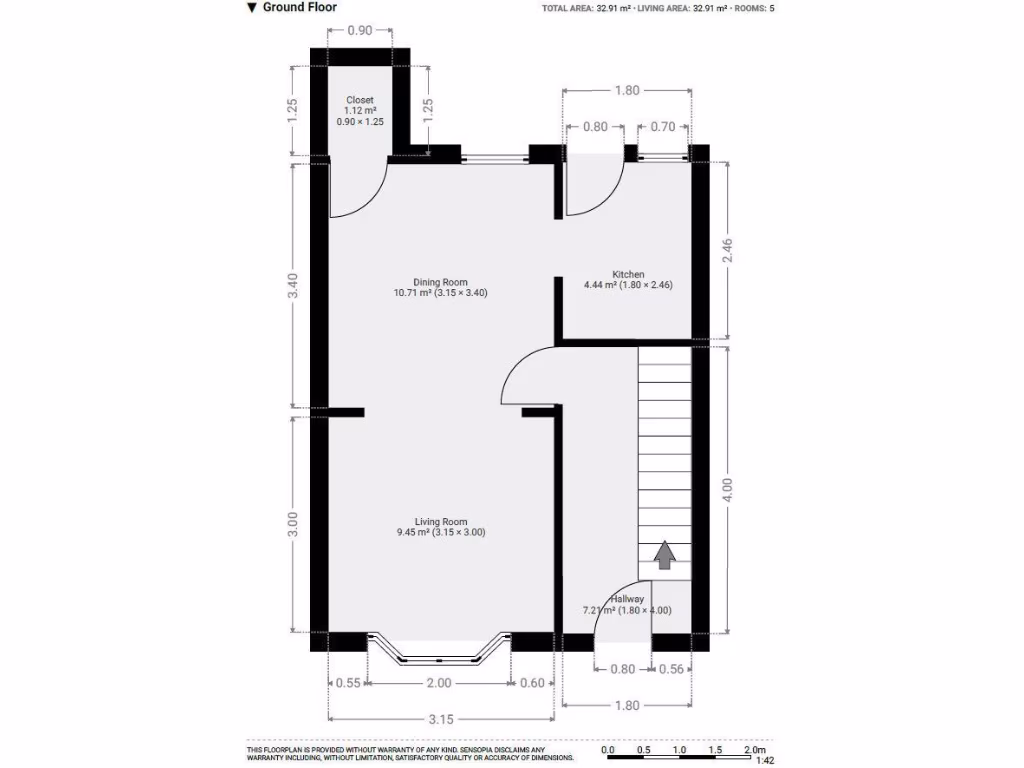
A compact two-bedroom Victorian terrace offered freehold at an accessible price. The house has a bay-fronted living room, adjoining dining space and a rear kitchen that opens onto a long garden with two brick storage sheds and rear garage access. Central heating is installed and many rooms have double glazing.
The layout suits a first-time buyer, small family or investor seeking a straightforward buy-to-let. Rooms are small-to-average and the overall footprint is modest (approx. 354 sq ft), so expect cosy living rather than generous volumes. The property is chain-free and priced to reflect its size and condition.
The interior shows dated mid-century finishes and will reward modest updating: modern kitchen and bathroom work, decorative refresh and some general modernisation would significantly improve comfort and value. There is potential to improve circulation or storage with a reconfiguration, subject to inspection.
Consider location factors when deciding to view. The house sits in a very deprived area with high local crime levels; nearby schools and amenities are mixed but include several good secondary options. Broadband and mobile signal are strong and there is no notable flood risk.
2 bedroom terraced house for sale in Milton Avenue, Scarborough, YO12 — £130,000 • 2 bed • 1 bath • 635 ft²
2 bedroom terraced house for sale in Seamer Street, Scarborough, YO12 — £110,000 • 2 bed • 1 bath • 549 ft²
2 bedroom terraced house for sale in Gordon Street, Scarborough, North Yorkshire, YO12 — £155,000 • 2 bed • 1 bath
2 bedroom terraced house for sale in Trafalgar Terrace, Scarborough, YO12 — £120,000 • 2 bed • 1 bath • 667 ft²
2 bedroom terraced house for sale in Ewart Street, Scarborough, North Yorkshire, YO12 — £125,000 • 2 bed • 1 bath • 764 ft²
2 bedroom terraced house for sale in Seamer Road, Scarborough, North Yorkshire, YO12 — £110,000 • 2 bed • 1 bath • 782 ft²


















































































































