Compact new-build apartment with balcony and excellent transport links.
17th-floor apartment with views towards Canary Wharf
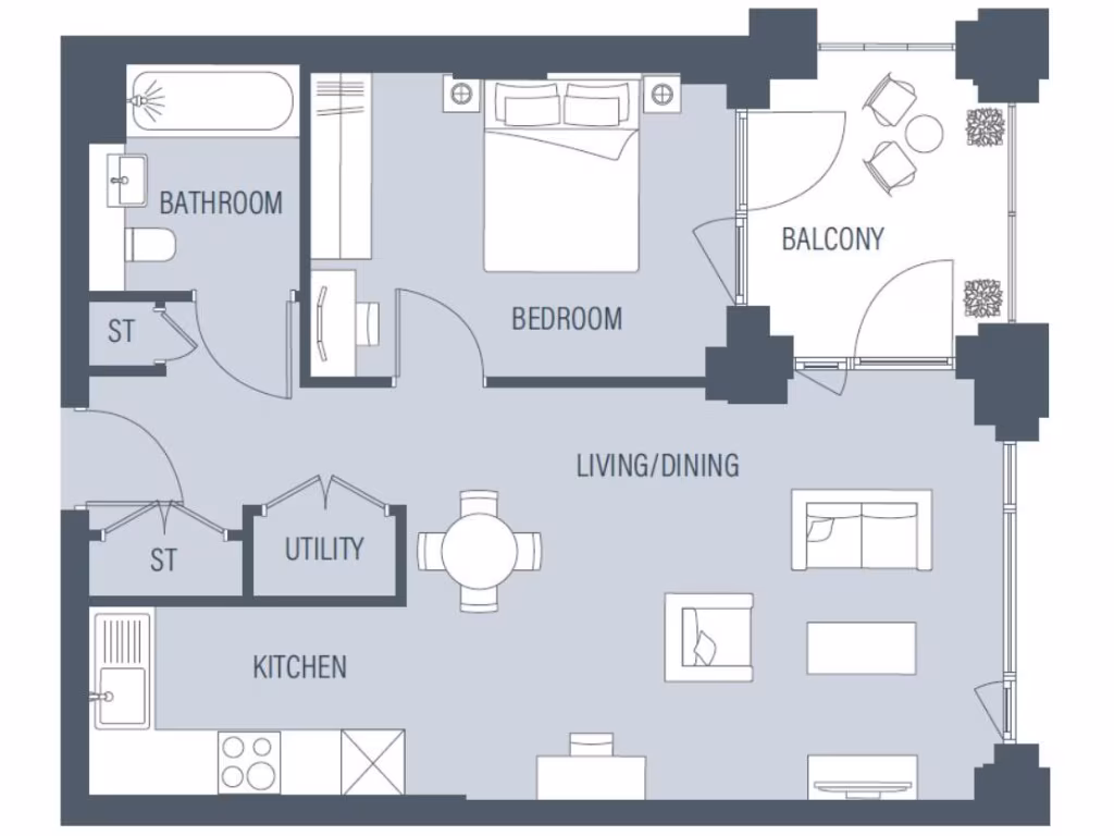
This 17th-floor one-bedroom apartment at Bermondsey Heights offers bright, open-plan living with Canary Wharf views and a private balcony that extends the living space. At 577 sq ft (53.6 sq.m.) the layout includes a fitted kitchen with integrated appliances, a double bedroom, bathroom and useful storage — a compact city home designed for modern, low-maintenance living.
The development sits in a Zone 2 regeneration area with fast transport links: about five minutes by train to London Bridge and easy access to London City Airport. The Rezide Equity Loan Scheme is available, which could help first-time buyers get a foothold in this well-connected location.
Buyers should note material local considerations: crime is reported as very high and the wider area shows higher deprivation metrics. Tenure is listed as unknown — confirm lease length, ground rent and service charges before committing. Flood risk is very low and mobile/broadband connectivity is excellent.
Overall this is a new-build, city-centre style apartment suited to a buyer seeking strong transport links, skyline views and a compact, contemporary home. It will suit buyers prioritising convenience and future growth potential, but expect to verify management details and local safety measures as part of due diligence.
1 bedroom apartment for sale in 227-255 Ilderton Road,
London,
SE15 1NS, SE15 — £493,000 • 1 bed • 1 bath • 577 ft²
3 bedroom apartment for sale in 227-255 Ilderton Road,
London,
SE15 1NS, SE15 — £742,000 • 3 bed • 1 bath • 941 ft²
2 bedroom apartment for sale in 227-255 Ilderton Road,
London,
SE15 1NS, SE15 — £530,000 • 2 bed • 1 bath • 820 ft²
2 bedroom apartment for sale in 227-255 Ilderton Road,
London,
SE15 1NS, SE15 — £550,000 • 2 bed • 1 bath • 820 ft²
2 bedroom apartment for sale in 227-255 Ilderton Road,
London,
SE15 1NS, SE15 — £675,000 • 2 bed • 1 bath • 708 ft²
3 bedroom apartment for sale in 227-255 Ilderton Road,
London,
SE15 1NS, SE15 — £683,000 • 3 bed • 1 bath • 1301 ft²






























































