Chain free three-bedroom semi-detached home
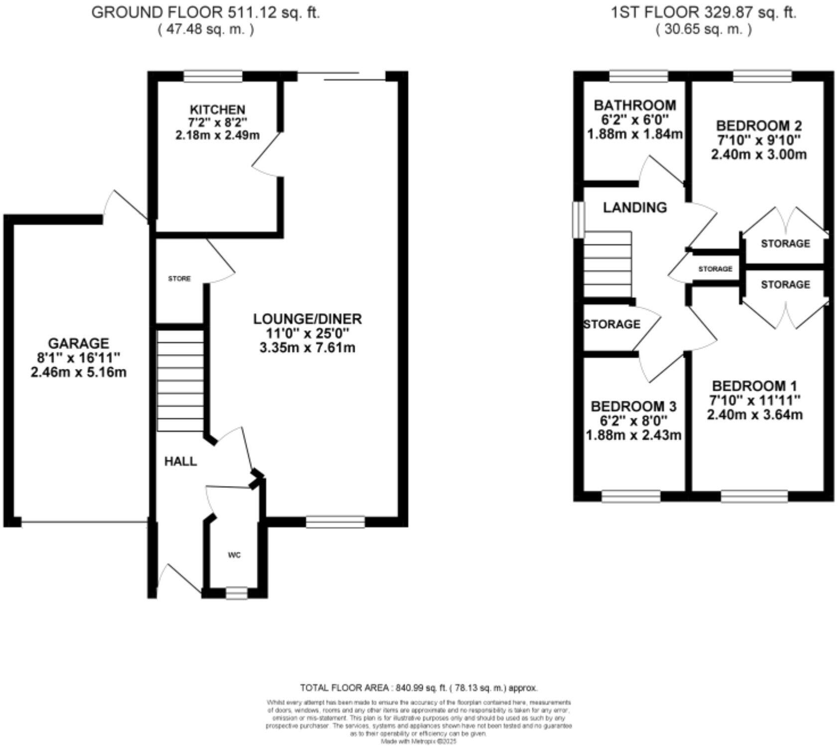
This three-bedroom semi-detached home on Simeon Way is offered chain-free and ready for a first-time buyer or young family to personalise. An open-plan living/dining room creates a bright, sociable ground floor while a practical U-shaped kitchen offers good storage and clear potential to be reconfigured into an open-plan kitchen/diner (subject to planning permission).
Upstairs provides two generous double bedrooms with fitted wardrobes and a single third bedroom suitable for a nursery, home office or dressing room. The family bathroom serves all bedrooms. Outside there’s a well-kept rear garden with patio and lawn, plus off-road parking and an integral single garage for extra storage or a workshop.
Located within walking distance of local shops, the Trent and Mersey Canal, primary schools and Stone town centre, the house benefits from fast broadband, excellent mobile signal and convenient transport links to the A34/A51 and Stone station. The property is freehold, has double glazing and mains gas central heating.
Practical points to note: the house has an EPC rating of D and sits on a small plot, so outdoor space is modest. The kitchen is compact and would need reconfiguration for an open-plan layout; any significant structural changes would require planning permission. Overall this is a straightforward, affordable home with scope for improvement and good local amenities nearby.



























































































