Five-bedroom end-terrace with garage, long south garden and strong rental income..
Let until 1 Aug 2026 at £3,600pcm — immediate income and c.8% gross yield
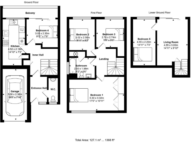
Five bedrooms including dining room/fifth bedroom with balcony access
100 ft south-facing secluded garden, patio and lawn
Garage and driveway providing private parking
Double glazing, gas central heating; EPC rating C
Total area about 1,368 sq ft; overall internal size described as small
Located close to Egham station, town centre and university gates
Tenancy in place — no vacant possession until tenancy ends
Set up as a clear income-producing opportunity, this five-bedroom end-of-terrace town house sits in a quiet cul-de-sac close to Egham high street and the mainline station. The property is let until 1 August 2026 at £3,600 pcm, delivering a current gross yield of about 8% for buyers seeking immediate rental return. Arranged over multiple storeys, the layout includes a living room, kitchen with appliances, downstairs cloakroom, large bathroom and a dining room/ fifth bedroom with balcony access.
Outside, the house benefits from a long, south-facing 100 ft garden that’s secluded and well stocked, plus a garage and driveway for private parking. Double glazing and gas central heating to radiators are already in place and the EPC is a C — sensible running costs but not top-tier efficiency. Total internal area is around 1,368 sq ft and the property is freehold.
This location works for investors: easy walk to the university gates and regular demand from students and professionals has underpinned historic lettings. The property is presented in a generally well-maintained condition and has consistently let for the current landlord. It will suit investors who want a let-and-hold asset with immediate income rather than an owner-occupier needing vacant possession.
Important considerations: the sale is targeted at investment buyers only and the tenancy remains in place until August 2026, so vacant possession is not available on completion. Council tax is above average and overall internal size is described as small for a five-bedroom layout, so resale or conversion plans should factor those limits.
5 bedroom house for sale in Rusham Road, Egham, TW20 — £535,000 • 5 bed • 2 bath • 1354 ft²
5 bedroom terraced house for sale in Greenways, Egham, TW20 — £530,000 • 5 bed • 1 bath • 1221 ft²
5 bedroom terraced house for sale in Greenways, Egham, Surrey, TW20 — £530,000 • 5 bed • 2 bath • 1280 ft²
5 bedroom semi-detached house for sale in Harvest Road, Englefield Green, Egham, Surrey, TW20 — £550,000 • 5 bed • 2 bath • 1256 ft²
5 bedroom end of terrace house for sale in 5 Bed close to Royal Holloway, TW20 — £535,000 • 5 bed • 2 bath • 1066 ft²
5 bedroom terraced house for sale in Beechtree Avenue, Englefield Green, Egham, Surrey, TW20 — £375,000 • 5 bed • 1 bath • 1071 ft²














































































