TR18 3LS - 2 bedroom terraced house for sale in Chyandour Place, Penza…

View on Property Piper

2 bedroom terraced house for sale in Chyandour Place, Penzance TR18

Summary - 2 CHYANDOUR PLACE PENZANCE TR18 3LS

2 bed 1 bath Terraced

**Standout Features:**
- Two-bedroom mid-terrace cottage
- Offered with **no onward chain**
- uPVC double glazing and gas central heating
- Close to beaches and amenities
- Ideal for first-time buyers
- **EPC Rating: D64** | **Council Tax Band: B**
- Some modernization needed

Nestled in Penzance and just a stone's throw from stunning beaches and local shops, this charming two-bedroom mid-terrace cottage offers an excellent opportunity for first-time buyers or those seeking a coastal retreat. The property features a cozy living room with a wood stove, a practical kitchen, and two bedrooms with glimpses of St. Michael's Mount from the second room. While some modernization is needed, the home benefits from double-glazed windows and gas central heating, providing a solid foundation to create your ideal space.

With on-street parking available and excellent transport links, this cottage promises both comfort and convenience. Explore the potential to enhance your investment in a vibrant community known for its beautiful coastal paths and year-round dog-friendly beaches. Don't miss out on this chance—properties like this are in high demand and tend to go quickly, so arrange an early viewing to secure your slice of Cornwall living!

Property Details

Image Descriptions

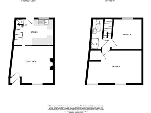
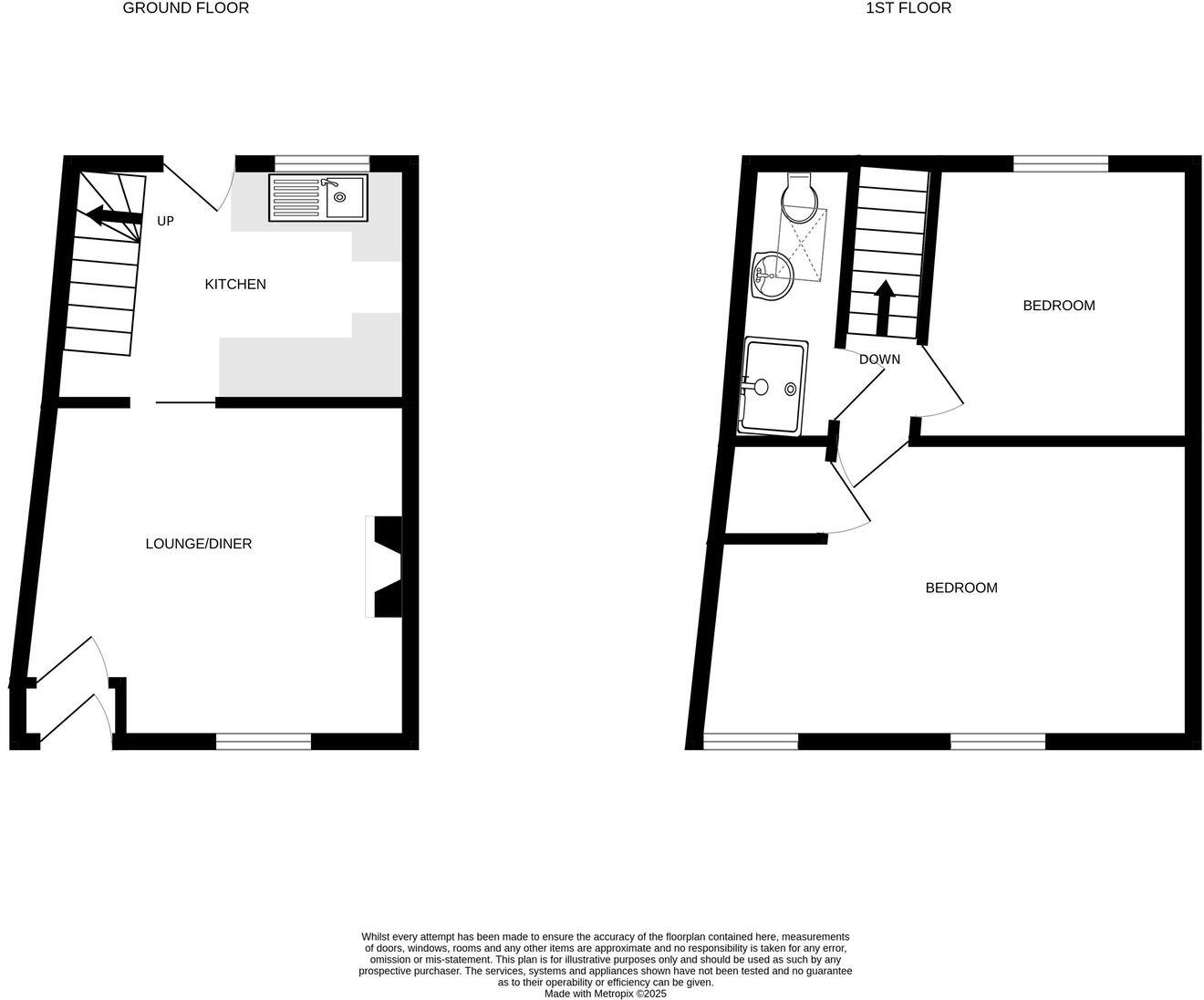
Floorplan Description

Rooms

Textual Property Features

Detected Visual Features

EPC Details

Nearby Schools

Nearest Bars And Restaurants

,,,,}

Nearest General Shops

,,}

Nearest Grocery shops

,,}

Nearest Supermarkets

,,}

Nearest Religious buildings

,,}

Nearest Medical buildings

,,,}

Nearest Leisure Facilities

,,,,}

Nearest Tourist attractions

,,}

Nearest Train stations

,,,,}

Nearest Bus stations and stops

,,,,}

Nearest Hotels

,,}

Tags

Local Market Stats

AirBnB Data

Similar Properties

Meta

High Res Images

Compatible Images

Low res Images

Thumbnails

Raw Images

High Res Floorplan Images

Compatible Floorplan Images

Low res Floorplan Images

FloorplanImages Thumbnail

Raw Floorplan Images