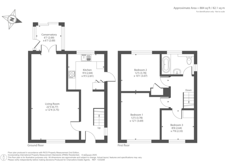
**Standout Features:**
- Modern, beautifully presented three-bedroom semi-detached home
- Newly fitted bathroom and double-glazed windows throughout
- Versatile outbuilding currently used as an office
- Landscaped west-facing garden with new patio
- Off-street driveway parking with EV charger
- Walking distance to local shops, restaurants, and amenities
This charming three-bedroom semi-detached family home, ideally located in a comfortable and affluent neighborhood, combines modern comfort with style, making it a perfect choice for families and professionals. Step inside to discover a spacious and inviting layout featuring bright living and dining areas that flow into a delightful conservatory. The property boasts a newly fitted bathroom and new double-glazed windows, enhancing its appeal and energy efficiency.
The landscaped west-facing garden offers a serene outdoor retreat, complete with a new patio—perfect for family gatherings or quiet evenings. An outbuilding currently serves as a home office, providing flexibility for remote work or additional storage. Conveniently situated within walking distance to various amenities and reputable schools such as Mytchett Primary Academy, this home is not only a cozy haven but also a smart investment in a community-oriented locale.
With driveway parking and an installed EV charger, practicalities are well catered for. Although the property is in excellent condition, it presents the opportunity for minor personalization to meet your taste. Don’t miss out on this beautifully updated home—ideal for first-time buyers or families dreaming of a modern lifestyle with room to grow. Act fast to secure this standout property that epitomizes comfort and convenience!



















































































