**Standout Features:**
- Detached bungalow with stunning sea views
- Generous plot size with large off-road parking and integral garage
- Four versatile bedrooms and spacious living areas
- Located near scenic cliff-top walks and the beach
- Freehold tenure with renovation potential
**Potential Concerns:**
- Requires updating and modernization
- Average crime rate in the area
- Average broadband speeds; other amenities may be limited
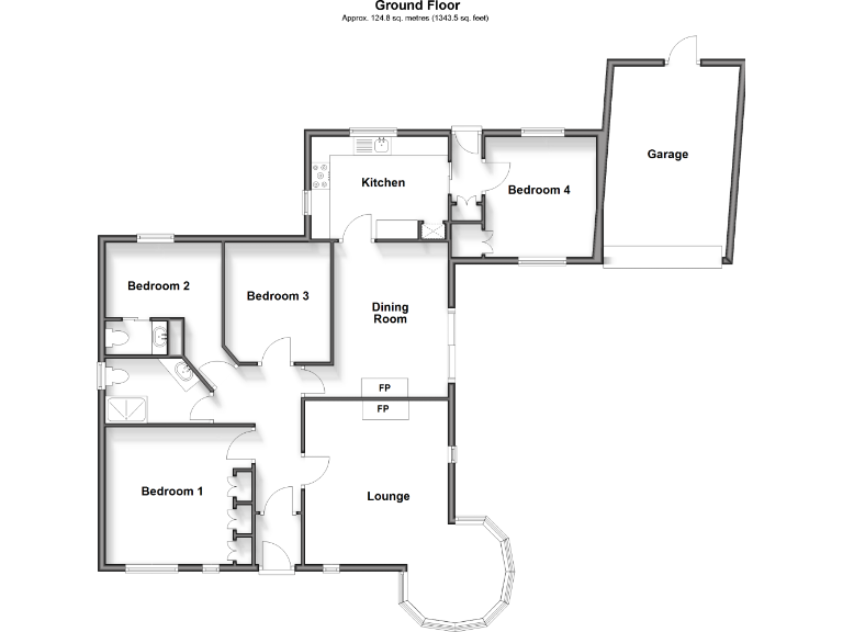
This delightful detached bungalow presents an exciting opportunity for buyers seeking a project in a picturesque coastal locale. Offering four well-sized bedrooms, a spacious lounge with a mid-century bay window showcasing lovely sea views, a separate dining room, and a rear kitchen, this property is set on a large plot with ample off-road parking and an integral garage. Imagine evening strolls along the nearby cliff tops or enjoying the beach just a short walk away, fostering an active and serene lifestyle.
While the interiors need renovation, this provides a blank canvas for homeowners to infuse their personal style. Whether searching for a family home or a future rental investment, this property’s charm and location make it a must-see. Don’t miss the chance to secure a home with enormous potential in a beautiful environment—viewings are essential to appreciate this gem fully.
2 bedroom chalet for sale in Roderick Avenue, Peacehaven, East Sussex, BN10 — £400,000 • 2 bed • 1 bath • 1152 ft²
3 bedroom detached bungalow for sale in Gorham Way, Telscombe Cliffs, Peacehaven, BN10 — £375,000 • 3 bed • 1 bath • 1177 ft²
4 bedroom detached bungalow for sale in Cliff Gardens, Telscombe Cliffs, BN10 7BT, BN10 — £392,000 • 4 bed • 1 bath • 904 ft²
3 bedroom chalet for sale in Southdown Avenue, Peacehaven, East Sussex, BN10 — £450,000 • 3 bed • 2 bath • 1098 ft²
4 bedroom property for sale in Deborah Terrace, Central Avenue, Telscombe Cliffs, BN10 7HB, BN10 — £495,000 • 4 bed • 1 bath • 702 ft²
4 bedroom detached bungalow for sale in Cowley Drive, Brighton, BN2 — £500,000 • 4 bed • 1 bath • 15040 ft²






















































