Period cottage on a large plot with workshop and conversion potential, in a quiet village location..
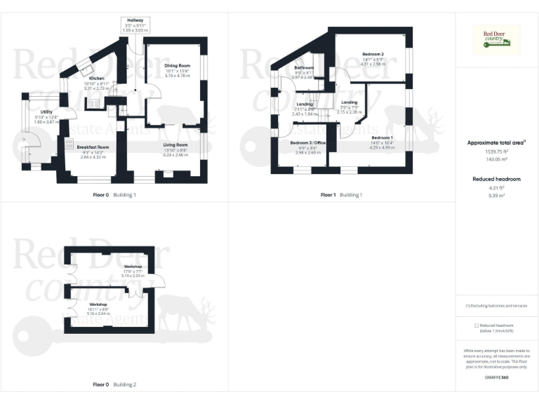
- Detached Georgian cottage with abundant character features
- Three reception rooms and three bedrooms with loft space
- Large garden approaching 1/4 acre with Victorian pond
- Tarmac driveway for two cars; double workshop with power
- New roof and boiler completed 2022/23; double glazing present
- Requires further cosmetic renovation throughout
- Barn on plot needs substantial renovation or replacement
- Single family bathroom only; factor upgrade costs
A charming Georgian cottage set on just under a quarter acre, The Old Post Office combines period character with scope for improvement. The house offers three reception rooms, three bedrooms and generous loft space — ideal for a growing family wanting versatile living and home-office options. Recent work completed in 2022/23 includes a new roof and boiler; the bathroom was refurbished in 2018.
Externally the mature, terraced gardens include three ponds (one original Victorian feature), established shrubs and trees, plus a tarmac driveway for two cars leading to a powered double workshop. A separate barn provides a useful footprint for conversion or replacement but requires renovation. The property has double glazing and oil central heating, with no flood risk.
Location suits buyers seeking village life with good access to nearby towns. Washford provides a primary school, shop/post office, pub and bus links; Williton (2 miles) and Minehead (7 miles) offer wider shopping, secondary schools and rail/bus connections. Broadband and mobile signals are average and local services are limited compared with larger towns.
Practical drawbacks: the house needs further cosmetic upgrading throughout, the barn requires substantial work, and there is only one family bathroom. Buyers should factor renovation costs and service limitations into their plans. For those seeking a period home with a large plot and scope to add value, this property offers genuine potential.
4 bedroom detached house for sale in West Street, Withycombe, Minehead, TA24 — £700,000 • 4 bed • 3 bath • 2759 ft²
4 bedroom detached house for sale in Station Road, Washford, TA23 — £350,000 • 4 bed • 2 bath • 2209 ft²
4 bedroom detached house for sale in Washford, Watchet, TA23 — £499,950 • 4 bed • 2 bath • 1792 ft²
4 bedroom detached house for sale in Willow Grove, Washford, TA23 — £470,000 • 4 bed • 3 bath • 1929 ft²
3 bedroom detached house for sale in Willett, Lydeard St. Lawrence, Taunton, Somerset, TA4 — £530,000 • 3 bed • 1 bath • 1639 ft²
3 bedroom end of terrace house for sale in Torre, Washford, Watchet, TA23 — £350,000 • 3 bed • 2 bath • 1664 ft²






























































































































































































