Large freehold development site with services on site and scope for one more dwelling.
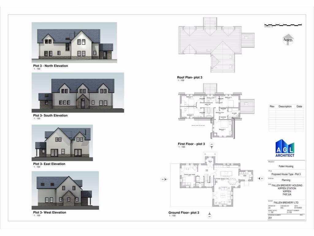
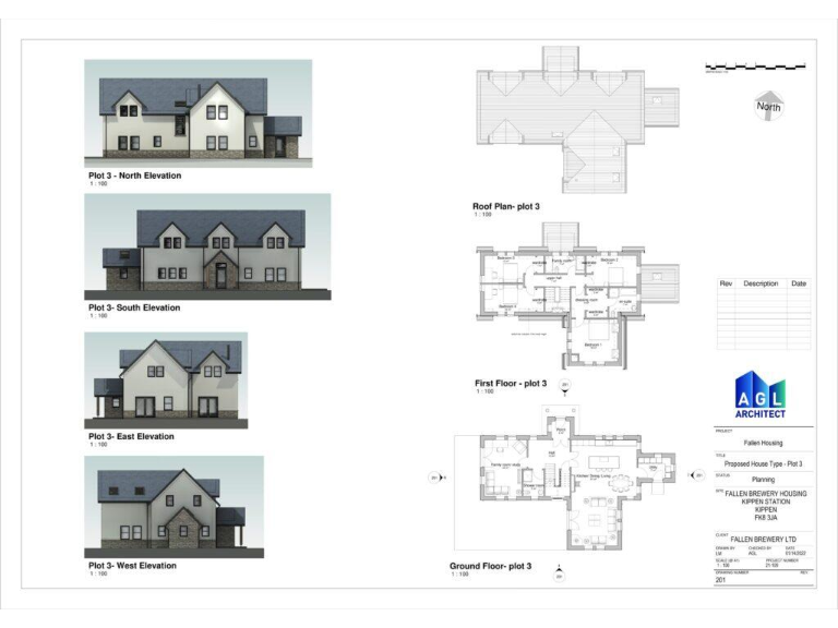
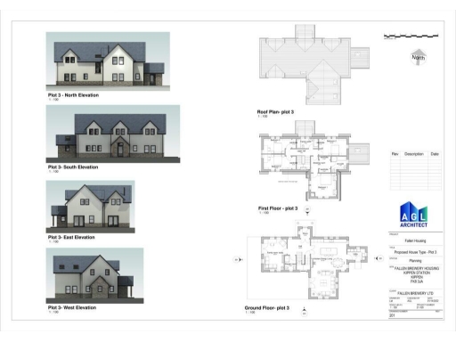
Full planning permission for three detached houses (Ref 22/00075/FUL)
A rare, sizeable edge-of-village development plot with full planning permission for three detached houses (Planning Ref 22/00075/FUL) and potential to pursue a fourth. Mains water, electricity and drainage are on site, and services are readily available for connection — a practical starting point for a small bespoke scheme in highly scenic Kippen.
The site sits on the outskirts of Kippen, around 10 miles west of Stirling, offering village amenities, good road links to Stirling, Glasgow and Edinburgh, fast broadband and excellent mobile signal. The location suits developers or investors seeking to deliver quality family homes in a peaceful, rural setting while remaining within reach of regional centres.
Important considerations: the wider area is classified as very deprived and the plot is in a remoter/agricultural community, which may affect sales values and timescales. Any additional dwelling would require a further planning application. The site is freehold and offered at £500,000; purchasers should verify all measurements and planning conditions with Stirling Council.
Land for sale in Plot A, Boquhan Estate, Kippen, FK8 — £195,000 • 1 bed • 1 bath • 3229 ft²
Plot for sale in Hillside of Row, FK15 — £250,000 • 4 bed • 1 bath • 1927 ft²
Residential development for sale in Plot at Sommers Lane, Stirling, FK9 — £120,000 • 1 bed • 1 bath • 13068 ft²
3 bedroom detached house for sale in Plot at Sommers Lane, FK9 — £120,000 • 3 bed • 1 bath • 13594 ft²
Plot for sale in Glentirranmuir, Kippen, Stirling, FK8 — £200,000 • 5 bed • 5 bath
Land for sale in Plot 1, The Lecropt Development, Bridge of Allan, FK9 — £325,000 • 1 bed • 1 bath


















































