South-facing garden, garage and easy access to Fareham amenities.
Secluded south-facing rear garden with patio and lawn
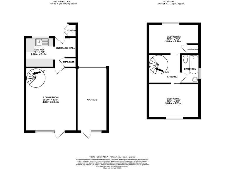
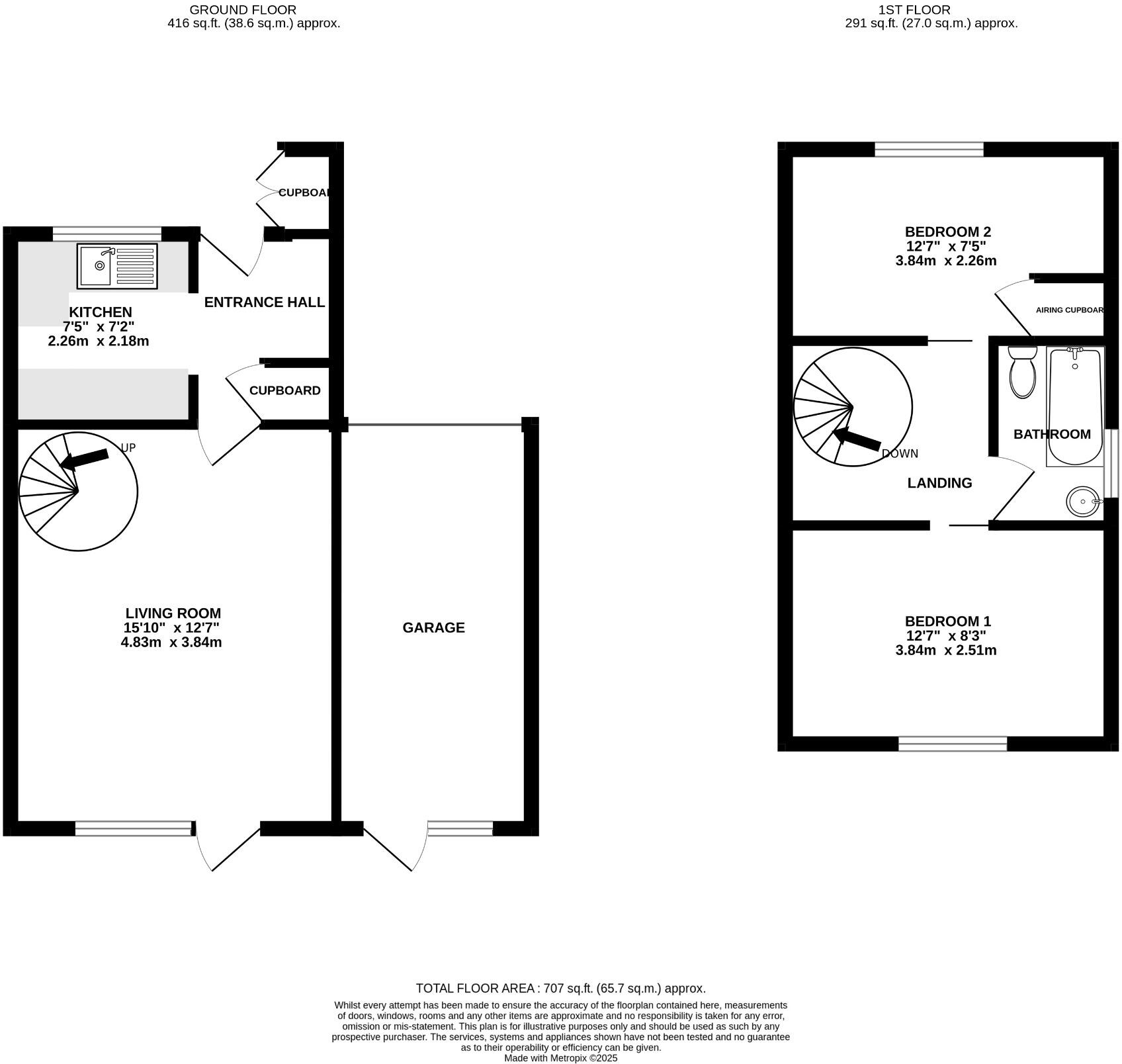
Set in a small cul-de-sac just east of Fareham town centre, this two-bedroom semi-detached house offers straightforward, affordable family living with driveway parking and an attached garage. The plan is compact and practical: entrance hall, kitchen, living room with garden access, two bedrooms and a single family bathroom. A secluded south-facing rear garden is a notable feature for outdoor use and summer sun.
The property benefits from gas central heating, double glazing and a loft accessed from the upstairs landing. The garage has power, light and roof storage, adding useful utility and storage space. Off-street parking for at least one car sits beside the garage, convenient for commuters and local errands.
The house was built in the 1980s and is average-sized at about 707 sq ft, with standard ceiling heights and a spiral staircase to the first floor. It presents a good opportunity for a first-time buyer or small family to move in and improve cosmetically — the kitchen and bathroom are functional but compact, and there is scope to modernise fittings and finishes to add value. EPC rating D, and the double glazing appears to have been installed before 2002.
Important practical points: the home has a single bathroom and relatively small overall footprint, so storage and room space are limited. Council Tax Band C is affordable and the area has very low crime and no flood risk, making it a sensible, low-risk purchase for someone seeking a manageable, well-located starter home.
3 bedroom semi-detached house for sale in Beaumont Close, Fareham, PO15 — £315,000 • 3 bed • 1 bath • 877 ft²
4 bedroom detached house for sale in William Price Gardens, Fareham, Hampshire, PO16 — £635,000 • 4 bed • 2 bath • 1183 ft²
3 bedroom semi-detached house for sale in Park Farm Avenue, Fareham, Hampshire, PO15 — £295,000 • 3 bed • 2 bath • 1135 ft²
2 bedroom end of terrace house for sale in Gosport Road, Fareham, PO16 — £270,000 • 2 bed • 1 bath • 600 ft²
3 bedroom detached house for sale in Briarwood Close, Fareham, PO16 — £400,000 • 3 bed • 1 bath • 1136 ft²
3 bedroom semi-detached bungalow for sale in Cherry Tree Avenue, Fareham, PO14 — £350,000 • 3 bed • 1 bath • 964 ft²














































