Charming two-bedroom getaway with balcony, parking and peaceful communal grounds.
Updated two-bedroom park home, usable throughout the year
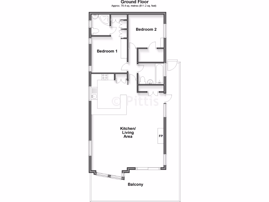
Open-plan living/kitchen nearly 20ft square, bright main living space
Balcony for outdoor dining and views over communal gardens
Allocated off-street parking and large plot for outdoor use
996-year lease length stated; verify tenure and site rules
High annual ground rent: £5,436 (substantial ongoing cost)
Slow broadband speeds despite excellent mobile signal
Small overall size—approximately 567 sq ft; limited internal rooms
This well-presented two-bedroom park home sits on a tranquil holiday site on the outskirts of Ryde, offering a manageable, year-round retreat on the Isle of Wight. The open-plan kitchen/living area is a standout at nearly 20ft square, and a balcony provides a pleasant spot for outside dining and views over communal gardens. Allocated off-street parking and a large plot increase convenience and outdoor potential.
Practical considerations are clear: the property is a modern prefabricated single-storey home with standard ceiling heights and modest overall size (approximately 567 sq ft). It benefits from excellent mobile signal and a 996-year lease, but prospective buyers should note a high annual ground rent figure and slower broadband speeds.
This home will suit someone wanting a low-maintenance island base or a calm holiday retreat close to Ryde’s facilities and good local schools. It has modern, maintained finishes and could serve as a comfortable long-term residence, but buyers must verify tenure, service charges, and any site rules before purchase.
2 bedroom park home for sale in Carters Road, Upton, Ryde, Isle of Wight, PO33 — £55,000 • 2 bed • 2 bath • 706 ft²
2 bedroom detached house for sale in Carters Road, Ryde, PO33 — £100,000 • 2 bed • 2 bath • 1062 ft²
2 bedroom detached house for sale in North Fields, Roebeck Country Park, Ryde, PO33 — £80,000 • 2 bed • 2 bath • 838 ft²
2 bedroom park home for sale in Ryde, Isle of Wight, PO33 — £110,000 • 2 bed • 1 bath
2 bedroom mobile home for sale in Nodes Point Holiday Park, Ryde, Isle of Wight, PO33 1YA, PO33 — £38,500 • 2 bed • 2 bath
2 bedroom detached bungalow for sale in Gatehouse Road, Upton, PO33 — £90,000 • 2 bed • 1 bath • 872 ft²














































