Modern two-double shared ownership house with garden and two parking spaces — local-connection required.
Two double bedrooms with built-in storage
50% shared ownership; leasehold tenure applies
Monthly rent on remaining share £254.55 (includes insurance/service charge)
Corner plot with rear garden, patio, side gated access
Driveway providing two off-street parking spaces
New build (2023) — modern fixtures and low-maintenance finishes
Local-connection requirement to qualify; £500 reservation fee on application
No flood risk; excellent mobile signal and fast broadband
A modern two-double-bedroom semi-detached house built in 2023 and offered as a 50% shared ownership opportunity. The property sits on a corner plot in a quiet cul-de-sac with a well-presented rear garden, patio areas and two off-street parking spaces — practical for small families or first-time buyers seeking low-maintenance living and good local links to St Austell and nearby beaches.
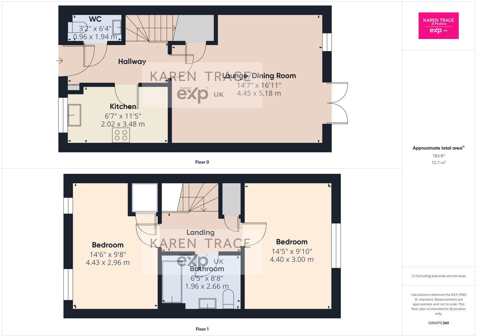
Inside, the layout is straightforward: entrance hall, downstairs WC, lounge/dining room with garden access, fitted kitchen with integrated appliances, and a family bathroom upstairs. Both bedrooms are full double size and include built-in storage; the home benefits from mains gas central heating, laminate floors downstairs and modern fixtures throughout.
Important purchase details and restrictions are factual: this is leasehold shared ownership (50% share) with a monthly rent of £254.55 on the remaining share, plus service charges and buildings insurance included in that figure. Applicants must meet LiveWest’s local connection criteria and a £500 reservation fee applies if your application is successful. Buyers should budget for ongoing rent and any staircasing costs if they wish to buy a larger share in future.
Overall this is a good-value, low-maintenance new build for eligible first-time buyers or local households wanting an entry into the market near the coast. The property’s primary limitations are the shared ownership tenure, the requirement to satisfy local-connection rules, and the ongoing rental/service charge commitment.
2 bedroom end of terrace house for sale in Brewery Drive, St. Austell, Cornwall, PL25 — £84,000 • 2 bed • 1 bath
3 bedroom semi-detached house for sale in Shared Ownership Property In St. Austell, PL25 — £156,200 • 3 bed • 1 bath • 968 ft²
2 bedroom terraced house for sale in Bodmin, Cornwall, PL31 — £94,000 • 2 bed • 1 bath • 564 ft²
2 bedroom semi-detached house for sale in Kew Vara, Bodmin, PL31 — £81,375 • 2 bed • 1 bath • 808 ft²
2 bedroom terraced house for sale in Bodmin, Cornwall, PL31 — £96,000 • 2 bed • 1 bath • 564 ft²
2 bedroom terraced house for sale in Bodmin, Cornwall, PL31 — £94,000 • 2 bed • 1 bath • 565 ft²






































































