Ready‑to‑move‑into three-bedroom semi with large garden and strong commuter links..
Immaculate, recently refurbished interior throughout
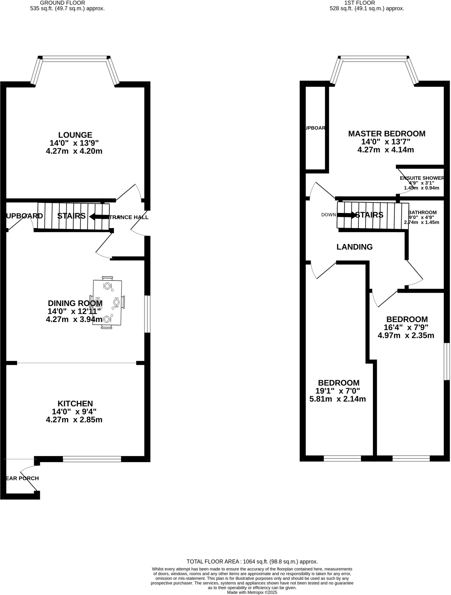
Three generous double bedrooms for family comfort
Spacious kitchen‑diner with island—good social living space
Expansive rear garden and patio for entertaining
Patterned concrete driveway plus detached rear garage
Single family bathroom only—no en suite or additional WC
Average overall internal size for this property type
Very low crime, fast broadband, excellent transport links
This extended semi‑detached home in Brecklands is presented in immaculate condition and ready to move into. The ground floor’s modern kitchen‑diner forms a social hub with an island unit and open flow to the lounge, while three generous double bedrooms provide comfortable family accommodation. Large windows and neutral finishes keep the interior bright and contemporary.
The property sits on a decent plot with an expansive rear garden and patio area — ideal for outdoor entertaining — plus a patterned concrete driveway and detached garage to the rear, offering extensive off‑street parking. Modern windows and recent refurbishment mean minimal immediate maintenance for the incoming owner.
Practical points to note: there is a single family bathroom and room sizes are described as average for this house type; buyers seeking more living bathrooms or significantly larger internal floor area should factor that in. The area is established and very affluent with low crime, excellent broadband and strong transport links, making the home well suited to families and commuters looking for a ready‑to‑live property with good parking and outdoor space.
3 bedroom semi-detached house for sale in Brecklands, Stag, Rotherham, S60 — £200,000 • 3 bed • 1 bath • 829 ft²
2 bedroom semi-detached house for sale in Havercroft Road, Rotherham, S60 3PB, S60 — £190,000 • 2 bed • 1 bath • 764 ft²
4 bedroom semi-detached house for sale in Gallow Tree Road, Rotherham, S65 — £260,000 • 4 bed • 1 bath • 1463 ft²
3 bedroom semi-detached house for sale in Melrose Grove, Rotherham, South Yorkshire, S60 — £250,000 • 3 bed • 2 bath • 1227 ft²
4 bedroom semi-detached house for sale in Brecks Lane, Brecks, Rotherham, S65 3JG, S65 — £360,000 • 4 bed • 2 bath • 1365 ft²
3 bedroom semi-detached house for sale in Brecklands, Stag, S60 — £205,000 • 3 bed • 1 bath • 778 ft²






































































































