**Standout Features:**
- Substantial end-terrace property with 7-bedroom house and 2-bedroom flat 
- Prime Hyde Park letting location, close to universities and local amenities
- Total gross rental income of £47,112 p/a (excluding bills), lease until June 2026
- HMO License valid until August 2027 for the house
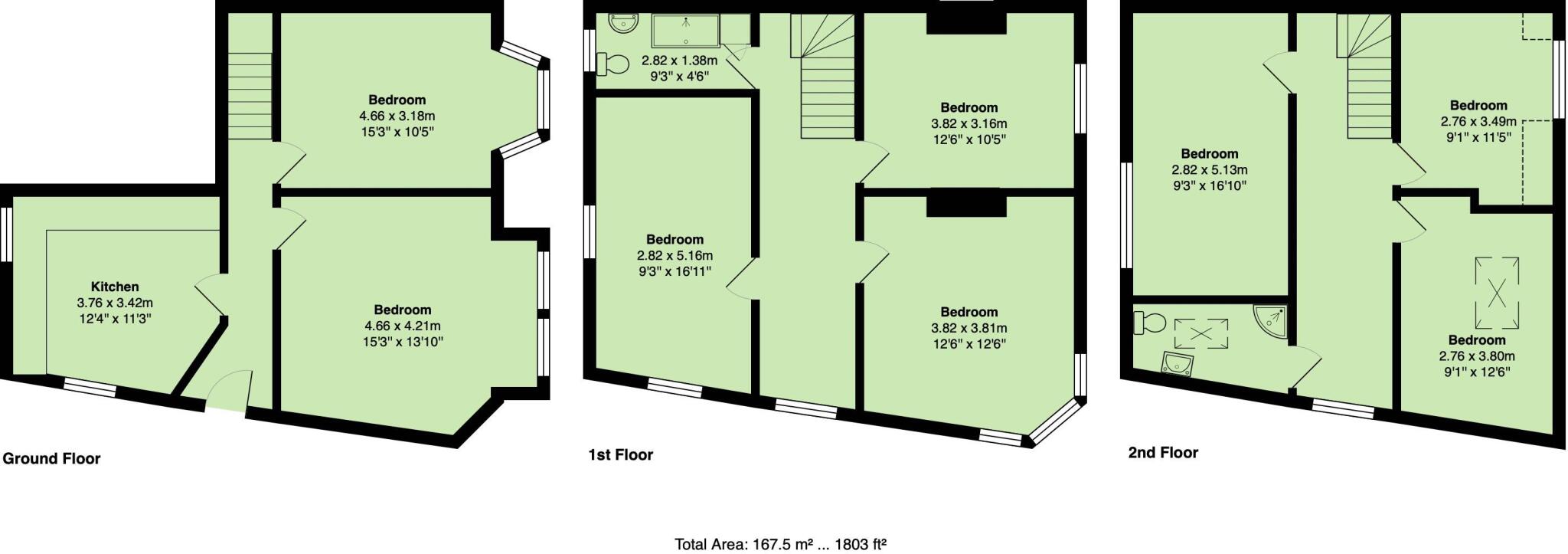
- Deceptively spacious layout spread across three stories
- Double-glazed windows for improved energy efficiency
- Good condition with contemporary styling; some areas may require maintenance
- No visible exterior garden but potential outdoor space due to end-terrace design
**Summary:**
This impressive end-terrace property, situated in the heart of a vibrant Hyde Park community, features a spacious 7-bedroom house alongside a 2-bedroom flat. Both residences currently enjoy a stable rental income of £47,112 per annum, making it an ideal investment opportunity, especially with a valid HMO license until 2027. The property exudes character while providing ample living space with modern interiors, seamlessly designed for communal living. 
Walking distance to local shops, the renowned Hyde Park Picture House, and the expansive green spaces of Hyde Park, this location is perfect for students and young professionals alike. While the property is in generally good condition, it may require some maintenance in certain areas, presenting an opportunity for potential buyers to customize their investment further. Don’t miss out on this lucrative opportunity in a cosmopolitan neighbourhood that combines comfort, convenience, and proven rental potential—seize it before it's gone!
 9 bedroom terraced house for sale in Brudenell Avenue, Leeds, LS6 — £625,000 • 9 bed • 3 bath • 2194 ft²
 9 bedroom terraced house for sale in Brudenell Avenue, Leeds, LS6 — £625,000 • 9 bed • 3 bath • 2194 ft² 8 bedroom terraced house for sale in Brudenell Avenue, Leeds, LS6 — £575,000 • 8 bed • 2 bath • 1949 ft²
 8 bedroom terraced house for sale in Brudenell Avenue, Leeds, LS6 — £575,000 • 8 bed • 2 bath • 1949 ft² 6 bedroom terraced house for sale in Chestnut Avenue, Leeds, West Yorkshire, LS6 — £530,000 • 6 bed • 5 bath • 1792 ft²
 6 bedroom terraced house for sale in Chestnut Avenue, Leeds, West Yorkshire, LS6 — £530,000 • 6 bed • 5 bath • 1792 ft² 6 bedroom terraced house for sale in Ash Grove, Leeds, LS6 — £485,000 • 6 bed • 6 bath • 2184 ft²
 6 bedroom terraced house for sale in Ash Grove, Leeds, LS6 — £485,000 • 6 bed • 6 bath • 2184 ft² 5 bedroom terraced house for sale in Brudenell View, Leeds, West Yorkshire, LS6 — £350,000 • 5 bed • 2 bath • 1403 ft²
 5 bedroom terraced house for sale in Brudenell View, Leeds, West Yorkshire, LS6 — £350,000 • 5 bed • 2 bath • 1403 ft² 6 bedroom terraced house for sale in Hessle View, Leeds, LS6 — £425,000 • 6 bed • 3 bath • 1164 ft²
 6 bedroom terraced house for sale in Hessle View, Leeds, LS6 — £425,000 • 6 bed • 3 bath • 1164 ft²






































































